1/86
Looks like no tags are added yet.
Name | Mastery | Learn | Test | Matching | Spaced | Call with Kai |
|---|
No study sessions yet.

New York “Metropolitan” Kouros, c. 600

Sunion kouros, c. 580

Munich kouros, c. 575-550

Anavysos kouros “Kroisos,” c. 530

Aristodikos Kouros, c. 500

Moskophoros/calf-bearer, c. 560

“Berlin goddess,” c. 570-560

“Phrasikliea,” c. 540

“Peplos kore,” c. 530

Euthydikos kore, c. 480

“Hera” of Samos. c. 570-560

Ischys kouros from Samos, c. 580-570

Gereleos group, Samos, c. 560-550

Grave Stele of Aristion, c. 510

Protoattic “Nessos” amphora, c. 625-600

The Francois vase, by Kleitias (painter) and Ergotimos (potter), c. 570

Amphora by Exekias (Achilles and Ajax playing dice), c. 540-530

Amphora by Exekias (suicide of Ajax), c. 540

“Bilingual” amphora by the Andokides painter, c. 520

Calyx krater with the death of Sarpedon by Euphronios, c. 515

Calyx krater by Euphronios (Herakles wrestling), c. 510-500

Black figure kylix by Exekias, c. 540

Temple of Aphaia at Aegina, c. 475

West pediment sculptures from the temple of Aphaia at Aegina, c. 475

East pediment sculptures from the temple og Aphaia at Aegina, c. 475

Temple of Zeus at Olympia, c. 460

Metope from the temple of Zeus at Olympia, Athena, Herakles, and Atlas

East pediment from the temple of Zeus at Olympia

West pediment from the sculpture of Zeus at Olympia

Temple of Hera II c. 470-460, Paestum, Italy

Kritios boy, c. 475

Bronze charioteer from Delphi, c. 460

God from Cape Artemision, c. 460-450

Harmodios and Aristogeiton, the tyrannicides, roman copy of bronze original by Kritios and Nesoiles, c. 477

“Mourning Athena” relief from the Akropolis, c. 470

Tomb of the diver, Paestum, c. 480

Calyx krater by the Niobid painter, c. 460

Diskobolos by Myron, roman copy of a greek bronze original, c. 450

The Doryphoros, by Polykleitos, roman copy of a bronze original, c. 430

Diadoumenos, by Polykleitos, roman copy, c. 430

Riace warriors A (left) and B (right), c. 440

Nike from Olympia, by Paionios, c. 420

Grave stele of Hegeso from Athens, c. 400

Amphora by the Achilles painter, c. 440

White ground lekythos, c. 410-400

Red figure hydria attrib. Meidias painter, c. 410-400

South Italian red figure calyx attrib. cyclops painter, c. 420-410

Temple of Apollo at Bassai, by Iktinos, c. 430-390

Tholos at the sanctuary of Asklepios at Epidauros, by Polykleitos the younger, c. 360-340

Theatre at Epidauros, early 3rd cent.

Plan of Miletos, by Hippodamos of Miletos, after 479

Piraeus, harbor of Athens, Planned by Hippodamos, c. 460

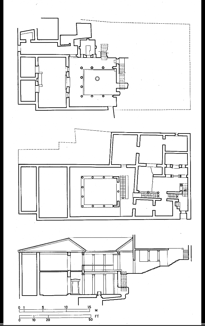
“Villa of good fortune” at Olynthus, 4th cent.

The mausoleum at Halikarnasos, c. 350-340

Eirene (peace) holding Ploutos, by Kephisodotos, roman copy of bronze original, c. 370

Hermes holding the infant Dionysus, by Praxiteles, c. 340

Aphrodite of Knidos, by Praxiteles, c. 350

Temple of Athena Alea at Tagea, by Skopas, c. 340

Apoxymenos, by Lysippos, roman copy of bronze original, c. 350-325

Copy of the Apollo sauroktonos, by Praxiteles, c. 275 bc - 300 ad

The antikythera youth, c. 350

Athena from Piraeus, c. 350

The getty bronze, attrib. Lysippos, c. 330-320

Ilissos stele, c. 330

The Alexander mosaic from the house of the fawn, Pompeii (potentially a copy of a painting by Philoxenos, c. 310)

Great tumulus at Vergina, c. 340-310

Abduction of persephone at Vergina, c. 340

Temple of Artemis at Magnesia, c. 175

Temple of Apollo at Didyma, c. 330 and later

Sanctuary of Asklepios at Kos, c. 160

The akropolis of Pergamon, 3rd-2nd cent.

Stoa of attalos in the Athenian Agora, c. 150

The “Arsinoeion”/rotunda of Arsinoe II, 288-270

Bouleuterion of Priene, c. 200

House of the mask, Delos, c. 150

House of Hermes, Delos, c. 150

Statue of Demosthenes, by Polyeuktus, roman copy of bronze original, c. 280

Tyche of Antioch, by Eutychides, roman copy of bronze orginal, c. 300

“Old drunken woman,” roman copy of original, c. 150-100

Boy with goose, by Boethius (?), roman copy of original, c. 150

Sleeping satyr (Barberini faun), c. 200

Dying Gaul (trumpeter), roman copy of original, c. 220

Aphrodite of Melos (venus de milo), c. 125-75

The Boxer, c. 100-50

Nike of Samothrace, c. 180

The Great Altar of Zeus at Pergamon, c. 175-150

Gigantomachy Frieze on the Great Altar at Pergamon, Zeus and Athena, c. 175-150