1/74
Name | Mastery | Learn | Test | Matching | Spaced | Call with Kai |
|---|
No study sessions yet.
Korszakolás
A kora reneszánsz: 1420-1500
Az itáliai kora-reneszánsz építészetének vezető mesterei: (10)
Filippo BRUNELLESCHI
MICHELOZZO di Bartelomeo/MichelozzoMichelozzi
Leon BATTISTA ALBERTI
Benedetto da MAIANO
Giulianoda SANGALLO
Luciano da LAURANA
Mauro CODUSSI
Pietro LOMBARDO
Zilio MONTANARI
Bernardo ROSSELINO

Filippo BRUNELLESCHi: Santa Maria del Fiore-dóm kupolája 1420-1434

Brunelleschi: Ospedale deigli Innocenti (Lelencház) Firenze, 1419-44

Santa del Fiore-dóm alaprajza

A Lelencház alaprajza

Brunelleschi: Firenzei San Lorenzo-templom, 1419-től
A homlokzat Michelangelo terve

San Lorenzo-templom főhajója

Brunelleschi:A San Lorenzo-templom régi sekrestyéje(Sagrestia Vecchia)1420-29

Brunelleschi: Firenzei Capella Pazzi, 1430-50

Brunelleschi: Firenzei Capella Pazzi, 1430-50
Az oszlopos előcsarnok (portikusz)

A Pazzi-kápolna portikuszának belső képe

A Pazzi-kápolna beltere

Pazzi-kápolna metszete és alaprajza

Brunelleschi: Firenzei Palazzo Pitti, 1440-től

Michelozzo: Palazzo Medici-Riccardi, Firenze (1444-59)

Medici-Riccardi-palota alaprajza

Medici-Riccardi-palota központi udvara

San Marco-templom és kolostor, Firenze

San Marco-templom homlokzata

San Marco-kolostor kerengője

San Marco-templom belseje

Villa Medici, Careggi (Firenze mellett), 1457 k.

A Villa Medici di Careggi alaprajza

Leon Battista Alberti: Palazzo Ruccelai Firenze, 1446-51

Ruccelai-palota alaprajza

L. B. Alberti: Santa Maria Novella homlokzata, Firenze, 1448-1470

Alberti: San Andrea-templom, Mantova, 1472-94

San Andrea-templom hosszháza

Alberti: Tempio Malatestiano, Rimini

Tempio Malatestiano belseje

Tempio Malatestiano alaprajza

Benedetto da MAIANO/Giulianoda SANGALLO?: Palazzo Strozzi, Firenze (1490-1536)

Strozzi-palota homlokzati rajza

Strozzi-palota belső udvara

Strozzi-palota alaprajza

Sangallo: Palazzo Gondi, Firenze, 1490-94

Palazzo Gondi belső udvara

A Piano nobile (első emelet) egyik termének óriás kandallója

Gondi-palota egyik terme

Gondi-palota alaprajza

G. da Sangallo: Villa Reale, Poggio a Caiano, 1480-85

A Villa Reale hallja

A Villa Reale alaprajza

G. da Sangallo: Madonna delle Carceri-templom, Prato, 1485-91

A Madonna delle Carceri metszete és alaprajza

Madonna delle Carceri-templom belseje

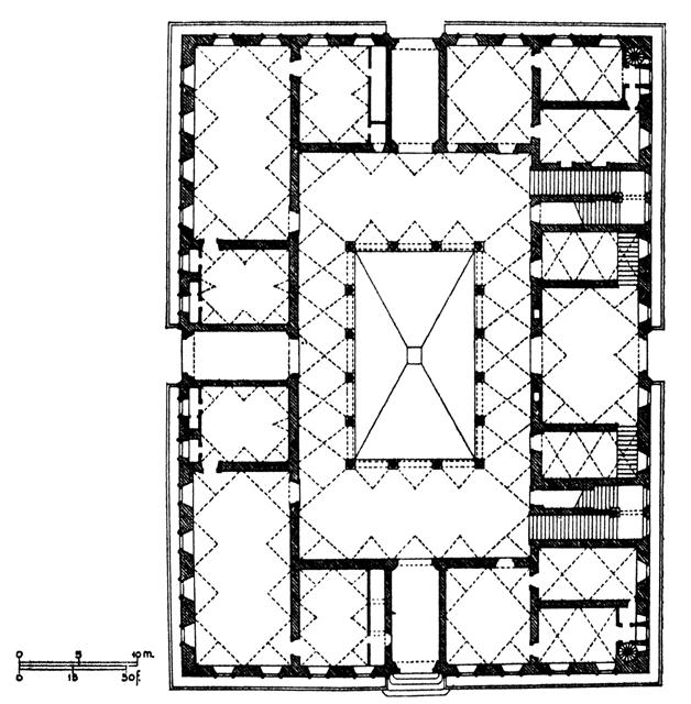
L. da Laurana: Palazzo Ducale, Urbino, 1468-82

A Palazzo Ducale főbejárata

Palazzo Ducale belső udvara

Urbinói Palazzo Ducale alaprajza

Mauro Codussi: Palazo Vendramin-Calergi, Velence, 1481-1509

Vendramin-Calergi palota alaprajza

M. Codussi: San Zaccaria-templom, Velence,1458-89

Mauro Codussi: San Michele in Isola-templom, Velence, 1469

San Michele in Isola-templom alaprajza

M. Codussi: Santa Maria Formosa, Velence

Santa Maria Formosa-templom belseje

M. Codussi: ScuolaGrande di San Marco homlokzata, átépítve 1490-95

M. Codussi: Palazzo Corner Spinelli, Velence

M. Codussi:Velencei óratorony(Torre dell’orologgio)

P. Lombardo:Santa Maria dei Miracoli-templom Velence,1481-1489

Santa Maria dei Miracoli dél-kelet felől

Santa Maria dei Miracoli templom belseje

Santa Maria dei Miracoli templom emelt szintű szentély

Santa Maria dei Miracoli-templom hosszmetszete

Santa Maria dei Miracoli-templom

P. Lombardo: Palazzo Dario, Velence

Pietro Lombardoés MauroCodussi: ScuolaGrande di San Marco, Velence

P. Lombardo vagy Mauro Codussi: Palazzo Contarini Polignac

Zilio Montanari: Palazzo Ghisilardi-Fava, Bologna, 1484-1491

Palazzo Fava belső udvara

B. Rosselino: Katedrális és Palazzo Piccolomini, 1459-62Piazza Pio II, Pienza

Palazzo Piccolomini udvara

Sienai Palazzo Pubblico márványportálja