1/62
Looks like no tags are added yet.
Name | Mastery | Learn | Test | Matching | Spaced | Call with Kai |
|---|
No analytics yet
Send a link to your students to track their progress
What is De Stijl?
Artistic movement from Netherlands.
What was De Stijl about?
This movement embraced basic visual elements like
Geometric Forms
Primary Colors
Against what syle did the De Stijl movement was reacting?
Against the Art Noveau due all the decorative excess the style came with.
De Stijl movement had some precedents from style fo the past?
No. This style was created for being part of a new era of the world and, it was consideres as a universal language.
It was a break from Beaux arts axial classicism
Who is Piet Mondrian
Dutch artist. Creator of Neoplasticsm.
What is Neoplasticism based on?
Based on the fundamental principle of geometry, combined with a astrong asymmetrically.
It also involved the use of pure primary colors with black and white.
And, relationship between positive and negative elemets.
With the help of what concept did Modnrian simplified his painting?
With Cubism
Who was the ambassador of Neoplasticsm in Europe?
Theo Van Doesburg
Goal of Neoplasticsm
Create buildings that look as an abstract sculpture
Characterstics of Planes
Blue - Red - Yellow composiyion
Dynamic asymmetrical balance
Interaction of form and space
Interaction of colored planes

Name and inventor.
Red, White and Blue chair - Created by Gerrit Rietveld
Charactersitics of the Red, White and Blue Chair
Free Planes
Extension of the Joint
Primary color

N - S - A - L
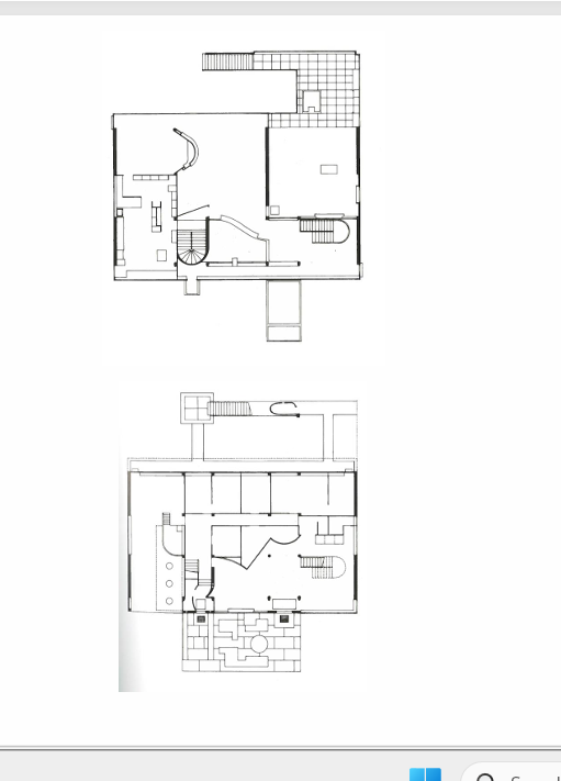
Schroder House
De Stijl
Gerrit Reitveld
Utrecht, Holland


Schroder House

Who is Charled Edouard Jeanneret-Gris
Architect
Painter
Urban Planer
Furniture Desogner
Architectural theoretician
Where did LeCobursier trevelled to?
First, Switzerland. He meet Joseph Hoffman there.
Second, Paris. He worked for Auguste Perret.
Third, Berlin. He worked for Peter Behrens.
What effect did these trips have over him?
He started to developed his own ideas about architecture
What visit affected the most to LC?
His trips to the Monastery at Galluzo.
This site had a profound influence over his architectural ideas, for the rest of his life.
What did LC believed when he visited the monastery?
He believed that people should live as peacefully as the monks in there.

N - A
Dom-ino House
LeCobusier
What was the Dom-ino house?
This was a physical platform that serve as a prototype for houses.
What does Dom-ino means?
Is a combination of the word Domus, which means house in latin and, the game domino as the piece could be aligned and the platforms had a similar shape as the pieces.
What did LeCobusier develop alongside Rene Ozefant?
They develop a version of Cubist Painting called Purism
Why did LeCobusier mainly focused in paintings at that time?
He was focused on this because they were times of war and there was not any purpose in having architectural projects since they would much likely be destroyed.

Difference between Cubism and Purism?
Cubisim = Decorative
Purism = Organzed, Proportion and Mathematics
Where did LeCorbusier adopted this pseudonym?
In a magazine pubblished in 1920. Lepirit Nouveau.
What did the pseunonym reflected?
It was a relfecion of LeCorbusier beliief that anyone can reinvent themselves.
What is Verse Un Architecture?
(Towards an Architecture)
This is a book written by LeCorbusier in 1923.
Characterisitcs of Verse Un Architecture
Call for an architecture in tune or for the industrialized era.
Is one of the most influential books of the 20th century
Reinterpretation of history to contemporary purpose
What is the house according to LeCorbusier?
The house is a machine for living

Five Points of LeCorbusier.
Piloti elevating the first floor of the hosiue
Flat roof OR roof garden
Free Plan
HORIZONTAL or ribbon window
Free facade

N - S - A - L
Maison Citrohan
Early Modernism (Purism / Proto-International Style)
Le Corbusier
Purism

Characterisitcs of the Maison Citrohan
Geometrical
Designed as a prototype for repetable houses = standrdized construction
Functional Layout = Functionality over ornamental
Double-Height
Clean Facade = Free Facade
Horizontal window
Flat Roof = Roof terrace
Elevated from ground level = Pilotis

N - A - S - L
Pavilion De L’Espirit Nouveau
LeCorbusier
Modernism (International Style / Purism)
Paris and Bolognia


Characterisitcs of the Pavillion De L’Espirit Nouveau
Standardized = Proto for mass housing
Modular design
Double-Height
Open Plan
Furniture were part of the architecure
Roof Garden
Horizontal windows
Pilotis LOGIC (IT WAS NOT ELEVATED)
Clean
Intended to be part of a larger system of housing.

N - A - S - L
Villas Jeanneret la Roche
Le Corbusier
Early Modernism (Purism, transition toward International Style)
Paris, France


Charactersitics of the Villa Jeanneret la Roche
Twin houses that were interconnected =
La Roche = art collector
Jeanneret = family residence
Asymmetrical = Interlock masses with various volumes
PROMENADE ARCHITECTURALE = The movement was carefully planned through ramps, stairs and shifting views
Double height art exhibition
Curved and linear forms
Curved wall for art gallery
Open Plan = interior spaces are fluid
Horizontal windows
Roof terrace
Minimal ornamentation
Functionzal coning = separation between public and private spaces

Of what concept the Villa Jeannete La Roche was preocursor?
Of the FIVE POINTS.
What is Promenade Architecturale
Architecture is experienced through movement in spaces
Charactersitics of the Promenade architecturale.
Movement defines experience
Buildings are understood by walking through it, not from just one view.
Sequential perception
Spaces are revealed as you walk through it
Controlled views
The architect guides what you see and when you see it
Variations in scale, height and light
Ramps, stairs and corridors = Central for the design
Architecture unfolding over time.

N - S - A - L
Villa Stein-de-Monzie
Purism
Le Corbusier
Vasucresson, France


Charactersitics of the Villa Le Monzie
Long Horiztonal windows
Geometric = Rectangular volumes
Clean facade
Minimal decoration
Proportionalty
Asymmetrical but balanced
Integration of modern life with the car at the front


what does this mean
Both follow Purist principles → clarity, order, simplicity
The painting = 2D exploration of form
The building = 3D realization of the same ideas


N - S - A - L
Villa Savoye
International style
Le Corbusier
Poissy-sur-Seine, France.


Charactersitics of the Villa Savoye
The five points of architecture fully applied.
Pilotis
Free plan
Free facade
Horizontal windows
Roof garden
Promenade Architecturale
“Experience of spaces through movement”
Ramp + Stairs
Spaces revealed sequantially
Geometric Purity = curvilinear and rectilinear shapes designing the building volume and experience
Form follows function = no ornaments


N - S - A - L
Pavillon Suisse, Cite Universitaire
International style / Modernism
Le Corbusier
Paris, France.


Characterisitcs of the Pavillon Suisse
Layout prioritized efficeicny and living needs
Geomtric volumes
No ornamentation
Elevated
Horizontal windows
Industrial and natural material mix = Glass/Concrete + Stone wall
Less pure modernism because is monolithic


CHARLOTTE PERRIAND
French architect and desinger
Key in modernist design
She combined functionality, simplicity and human comfort

LC FURNITURE COLLECTION
LC1. Basculant Chair
LC2. & LC3. Grand comfrort chair (LARGE AND PETIT)
LC4. Chaise loing
LC5. Sofa Bed
LC6. Table
LC7. Stool

LC Furniture Collection Designer
LeCorbusier, Perriand and Pierre Janneret
Characteristics of LC Furniture
International Style
Tubular steel strcuture
exposed frame
geometrical
functional
mass productive
machine for living