1/18
Looks like no tags are added yet.
Name | Mastery | Learn | Test | Matching | Spaced | Call with Kai |
|---|
No analytics yet
Send a link to your students to track their progress

Saint Sernin, Toulouse

Saint Martin-du-Canigou, Upper Church

Plan of Santiago de Compostela

Saint Sernin, Toulouse, Interior

St. Lazara, Autun, tympanun, Last Judgement

Santo Domingo de Silos, Spain. Road to Emmaus

Saint Pierre, Mosaic, Christ in Majesty

Ste.Madeline, Vézeley, Mission of the Apostles

St.Lazare, Autun, Flight into Egypt capital

Berzé la Ville, Pentecost/Mission of the Apostles

Plan of Cluny lll

First tone of Plainsong capital, Cluny lll

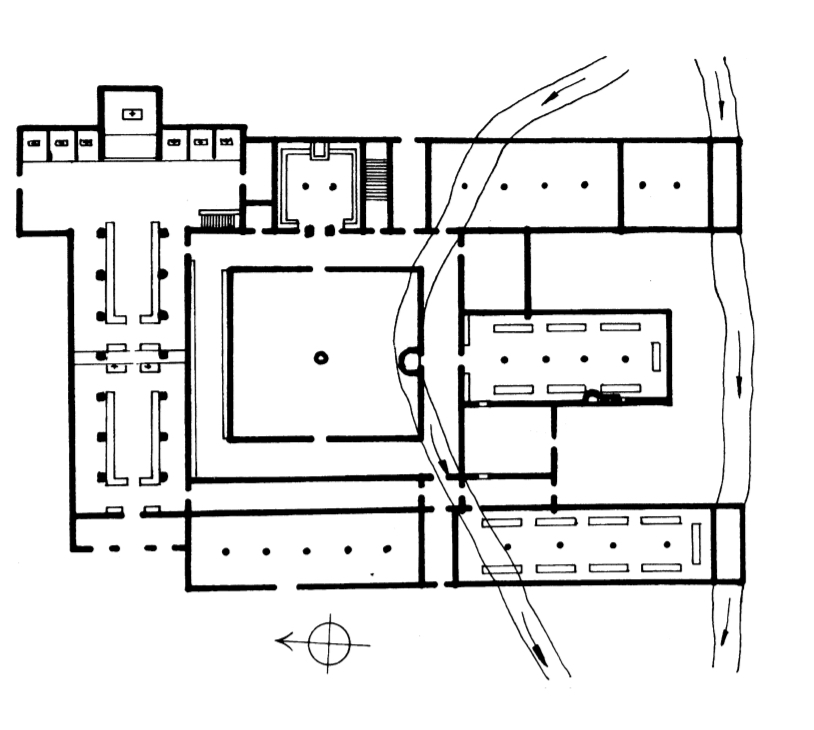
Plan of the ideal Cistercian Monastery

Abbey church, Fontenary

Moralia in Job (Cistercian)

Cluny Lectionary (Cluniac)

Reliquary of Ste.Foye

St. Savin-dur-Gartempe

Bayeux Embroidery