1/67
title, date + era/culture, location, medium (+artist)!
Name | Mastery | Learn | Test | Matching | Spaced |
|---|
No study sessions yet.

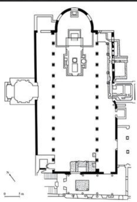
Catacomb of Priscilla
300 CE, Pompeian
Rome, Italy
tufa and fresco

Orant Fresco
300 CE, Pompeian
Catacomb of Priscilla, Rome, Italy
fresco

Good Shepherd Fresco
300 CE
Catacomb of Priscilla, Rome, Italy
fresco

Santa Sabina
430 CE, Romanesque
Rome, Italy
brick, stone, gypsum (windows)
basilica
government buildings in ancient rome
rectangular floorplan
supporting side columns
seen in: Santa Sabina, Hagia Sophia, Saint Foy, Notre Dame de Chartres

floor plan?
Santa Sabina
spolia
the re-use and repurposing of an older building
seen in: Santa Sabina, Dome of the Rock

San Vitale
540 CE, Byzantine
Ravenna, Italy
brick, marble, stone veneer, mosaic (tesserae)
centralized plan
entrance into building immediately leads to main center room
highlights central dome
seen in: San Vitale, Hagia Sophia, Dome of the Rock

San Vitale
known for octogonal shape!
buttress
support arms on exterior of building for weight
seen in: san vitale

Justinian and Theodora Mosaic Panels
540 CE, Byzantine
San Vitale, Ravenna, Italy
mosaic (tesserae)

Hagia Sophia Mosaics
11th century CE, Byzantine
Hagia Sophia, Istanbul, Turkey
mosaic (tesserae)

Hagia Sophia
535 CE, Byzantine
Constantinople/Istanbul, Turkey
brick, stonemasonry, marble

floor plan?
Hagia Sophia
pendentives
architectural component that allows for a dome over a square space
seen in: Hagia Sophia

Dome of the Rock
700 CE, Islamic (Byzantine inspirations)
Jerusalem, Israel
gold, mosaics, marble

floor plan?
Dome of the Rock

Great Mosque-Cathedral of Cordoba
785 CE, Islamic
Cordoba, Spain
marble

Hypostyle Prayer Hall of Great Mosque-Cathedral of Cordoba
785 CE, Islamic
Great Mosque-Cathedral of Cordoba, Cordoba, Spain
marble

Mihrab of Great Mosque-Cathedral of Cordoba
785 CE, Islamic
Great Mosque-Cathedral of Cordoba, Cordoba, Spain
gold, tesserae

floor plan?
Great Mosque-Cathedral of Cordoba

Sainte Foy
1130 CE, Romanesque
Conques, France
limestone, gold, silver

floor plan?
Sainte Foy
tympanum
(Tympanum of Sainte Foy)
the semicircular area enclosed by arches and a pediment
usually decorated with sculpture (bas relief) during Romanesque and Gothic eras


Reliquary of Sainte Foy
9th century, Romanesque
Sainte Foy, Conques, France
gold, gems, wood

Notre Dame de Chartres
1220 CE, Gothic
Chartres, France
limestone, stained glass (windows)

floor plan?
Notre Dame de Chartres

The Alhambra
1300 CE, Islamic
Grenada, Spain
redstone, marble, limestone, mosaic

floor plan?
The Alhambra

Merovingian Looped Fibulae
6th century CE, Byzantine/Roman
France, Europe
gold, gemstone

Virgin Theotokos and Child between Saints Theodore and George
6th/early 7th century, Byzantine
St. Catherine’s Monastery, Mt. Sinae, Egypt
encaustic (type of paint, pigment mixed w hot wax)

Pyxis of Al-Mugira
968 CE, Islamic
Cordoba, Spain
carved ivory

Bayeux Tapestry
1070 CE, Romanesque
Canterbury, England
wool thread on linen cloth (embroidery)

Lindisfarne Gospels
700 CE, Insular
Northumbria, England
parchment (calf or sheep skin)

Book of Kells
800 CE, Insular
Iona, Ireland
illuminated manuscript, gold leaf, parchment

Dedication Page w Blanche of Castille and King Louis IX (ninth)
1230 CE, Gothic
Paris, France
illuminated manuscript, gold leaf, parchment
roundel
illustrate each paragraph of a scripture
seen in: Dedication Page w Blanche of Castille and King Louis IX

The Golden Haggadah
1320 CE, Gothic/Jewish
Catalonia, Spain
illuminated manuscript, gold leaf, parchment

Rottgen Pieta
1320 CE, Gothic
Germany
wood, paint

Arena Chapel
1303 CE, Gothic
Padua, Italy
fresco

artist?
Arena Chapel Frescos
1305 CE, Gothic/Proto-Renaissance
Arena Chapel, Padua, Italy
fresco
painter: Giotto

artist?
The Lamentation
1305 CE, Gothic/Proto-Renaissance
Arena Chapel, Padua, Italy
fresco
painter: Giotto

artists?
Competition Panels, Sacrifice of Isaac
1402 CE, Renaissance
Florence, Italy
bronze, gold
Filippo Brunelleschi (left), Lorenzo Ghiberti (right)

“Gates of Paradise”/San Giovanni Baptistry Doors
1450 CE
San Giovanni Baptistry, Florence, Italy
bronze

artist?
The Holy Trinity
1424 CE, Renaissance
Santa Novella, France
fresco (wet plaster w/ paint)
artist: Masaccio

artist?
St. George and St. Mark
St George: 1416 CE (left), Renaissance
St Mark: 1411 CE (right), Renaissance
Florence, Italy
marble
artist: Donatello

artists?
Statues of David
Donatello: 1460 CE (left), Renaissance
Verrocchio: 1470 CE (right), Renaissance
Florence, Italy
bronze
artists: Donatello (left) and Verrocchio (right)

artist?
Fra Filippo Lippi, Madonna and Child with Angels
1460 CE, Renaissance
Florence, Italy
tempra on wood
artist: Filippo Lippi

artist?
Primavera
1480 CE, Renaissance
Florence, Italy
tempra on wood
artist: Sandro Botticelli

artist?
Birth of Venus
1480 CE, Renaissance
Florence, Italy
tempra on canvas
artist: Sandro Botticelli

artist?
Brunelleschi’s Duomo
1420 CE, Renaissance
Florence, Italy
brick and masonry
artist: Brunelleschi

artist?
Pazzi Chapel
1460 CE, Renaissance
Florence, Italy
sandstone and plaster
artist: Brunelleschi

artist?
Madonna of the Rocks
1490 CE, High Renaissance
Milan, Italy
oil on wood
artist: Leonardo Da Vinci

artist?
The Last Supper
1500 CE, High Renaissance
Santa Maria delle Grazie, Milan, Italy
mixed oil and tempra
Leonardo Da Vinci

artist?
Mona Lisa
1500 CE, High Renaissance
Florence, Italy
oil on wood
Leonardo Da Vinci
sfumato
shading technique where items appear softened and smokey
mostly demonstrated in Da Vinci’s work

artist?
Vitruvian Man
1490 CE, High Renaissance
Venice, Italy
ink on paper
Leonardo Da Vinci

artist?
The Pieta
1500 CE, High Renaissance
Vatican City, Rome, Italy
marble
Michaelangelo

artist?
Bacchus
1500 CE, High Renaissance
Rome/Florence, Italy
marble
Michaelangelo

artist?
The David
1500 CE, High Renaissance
Florence, Italy
marble
Michelangelo

artist?
Moses
1515 CE, High Renaissance
San Pietro, Rome, Italy
marble
Michelangelo

artist?
Sistine Chapel Ceiling
1510 CE, High Renaissance
Vatican City, Rome, Italy
fresco
Michelangelo
Trompe L’oeil
“fool the eye”
created illusion, makes painting appear 3D
seen in: Sistine Chapel Ceiling and Holy Trinity
Ignudi
nude figures
seen in: Sistine Chapel and Last Judgement

artist?
Last Judgement
1540 CE, High Renaissance
Vatican City, Rome, Italy
fresco
Michelangelo

artist?
La Belle Jardinière
1500 CE, High Renaissance
Florence, Italy
oil on canvas
Raphael Sanzio

The Alba Madonna
1510 CE, High Renaissance