1/17
Looks like no tags are added yet.
Name | Mastery | Learn | Test | Matching | Spaced | Call with Kai |
|---|
No analytics yet
Send a link to your students to track their progress
Example for geometry - basic combinations
Punta Nariga lighthouse by Portela, 1992

Example for geometry - basic combinations - aggregation
Auditorium Galicia, Cano, 1986

Example for geometry - basic combinations - intersection
Seinajoki Library, Alvar Aslto, 1963

Example for geometry - basic combinations - addition
Villa Rotonda, Palladio, 1566

Example for geometry - basic combinations - subtraction
Experimental Sciences Faculty, Viader, 1996

Example for geometry - crisscross network - grid
Elderly Residence, Sanmartí, 1968

Example for geometry - crisscross network - orthogonal grid
Dance School Almería, César Ruiz, 1987

Example for geometry - crisscross network - square grid
Civil Government, Alejandro de la Sota, 1957

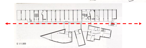
Example for geometry - irregular geometries
Guggenheim, Frank Ghery, 1997

Example for relation parts-whole - part equivalennt to whole
Punta Nariga lighthouse by Portela, 1992

Example for relation parts-whole - aggregation of parts to form a whole
Corona Aragón Archive, Amadó, 1992

Example for rhythms - unique surrounded by the repetitive
UNED Library, Linazasoro, 1993

Example for rhythms - repetitive surrounded by the unique
Sport Palace, Badalona, 1991

Example for rhythms - unique with a repetitive field
Elderly Residence, Donato, 1992

Example for balance
Idioms school, V. Rahola, 1994

Example for symmetry
Casa de las Flores, Zuazo, 1932

Example for linear configuration pattern
Baker House, Alvar Aalto, 1948
Example for central configuration pattern
Sainajoki Library, Alvar Aalto, 1963
