1/41
Looks like no tags are added yet.
Name | Mastery | Learn | Test | Matching | Spaced |
|---|
No study sessions yet.
Title: Catacomb of Priscilla - Greek Chapel
Date: c. 200 CE
Artist/Location: Rome
Style: Late Antique
Material: Tufa and Fresco
Notes:

Title: Catacomb of Priscilla - Orant Figures
Date: c. 200 CE
Artist/Location: Rome
Style: Late Antique
Material: Tufa and Fresco
Notes:

Title: Catacomb of Priscilla - Good Shepherd Fresco
Date: c. 200 CE
Artist/Location: Rome
Style: Late Antique
Material: Tufa and Fresco
Notes:

Title: Santa Sabina - Exterior
Date: c. 425 CE
Artist/Location: Rome
Style: Early Christian
Material: Brick and Stone
Notes:

Title: Santa Sabina - Interior
Date: c. 425 CE
Artist/Location: Rome
Style: Early Christian
Material: Brick and Stone
Notes:

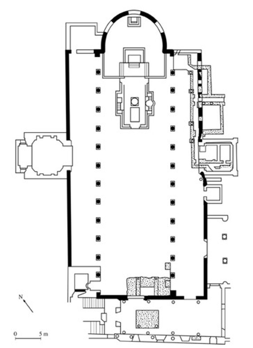
Title: Santa Sabina - Plan
Date: c. 425 CE
Artist/Location: Rome
Style: Early Christian
Material: Brick and Stone
Notes:

Title: Rebecca and Eliezer at the Well
Date: c. 525 CE
Artist/Location: Vienna Genesis
Style: Byzantine
Material: Vellum
Notes:

Title: Jacob Wrestling the Angel
Date: c. 525 CE
Artist/Location: Vienna Genesis
Style: Byzantine
Material: Vellum
Notes:

Title: San Vitale - Exterior
Date: c. 525 CE
Artist/Location: Ravenna
Style: Byzantine
Material: Brick/Marble/Stone
Notes:

Title: San Vitale - Interior
Date: c. 525 CE
Artist/Location: Ravenna
Style: Byzantine
Material: Brick/Marble/Stone
Notes:

Title: San Vitale - Justinian Panel
Date: c. 525 CE
Artist/Location: Ravenna
Style: Byzantine
Material: Brick/Marble/Stone
Notes:

Title: San Vitale - Theodora Panel
Date: c. 525 CE
Artist/Location: Ravenna
Style: Byzantine
Material: Brick/Marble/Stone
Notes:

Title: San Vitale - Plan
Date: c. 525 CE
Artist/Location: Ravenna
Style: Byzantine
Material: Brick/Marble/Stone
Notes:

Title: Hagia Sophia - Aerial View
Date: c. 535 CE
Artist/Location: Constantinople by Anthemius and Isidorus
Style: Byzantine
Material: Brick with veneer
Notes:

Title: Hagia Sophia - Interior
Date: c. 535 CE
Artist/Location: Constantinople by Anthemius and Isidorus
Style: Byzantine
Material: Brick with veneer
Notes:

Title: Hagia Sophia - Plan
Date: c. 535 CE
Artist/Location: Constantinople by Anthemius and Isidorus
Style: Byzantine
Material: Brick with veneer
Notes:

Title: Virgin and Child with Saints Theodore & George
Date: c. 600 CE
Artist/Location: Mt. Sinai
Style: Byzantine
Material: Encaustic on Wood
Notes:

Title: Merovingian Looped Fibulae
Date: c. 550 CE
Artist/Location: Europe
Style: Medieval
Material: Silver Gilt
Notes:

Title: Lindisfarne Gospels - St. Matthew Cross Carpet Page
Date: c. 700 CE
Artist/Location: Hiberno Saxon
Style: Medieval
Material: Illuminated Vellum
Notes:

Title: Lindisfarne Gospels - St. Luke Portrait
Date: c. 700 CE
Artist/Location: Hiberno Saxon
Style: Medieval
Material: Illuminated Vellum
Notes:

Title: Lindisfarne Gospels - Incipit Page
Date: c. 700 CE
Artist/Location: Hiberno Saxon
Style: Medieval
Material: Illuminated Vellum
Notes:

Title: Church of Sainte-Foy - Exterior
Date: b. 1050 CE
Artist/Location: Conques, France
Style: Romanesque
Material: Stone
Notes:

Title: Church of Sainte-Foy - The Last Judgment
Date: b. 1050 CE
Artist/Location: Conques, France
Style: Romanesque
Material: Stone
Notes:

Title: Church of Sainte-Foy - Interior
Date: b. 1050 CE
Artist/Location: Conques, France
Style: Romanesque
Material: Stone
Notes:

Title: Church of Sainte-Foy - Reliquary of Sainte Foy
Date: b. 1050 CE
Artist/Location: Conques, France
Style: Romanesque
Material: Gold, Silver, Jewels
Notes:

Title: Bayeux Tapestry - Cavalry Attack
Date: c. 1066 CE
Artist/Location: England
Style: Romanesque
Material: Embroidery in Linen
Notes:

Title: Bayeux Tapestry - First Meal
Date: c. 1066 CE
Artist/Location: England
Style: Romanesque
Material: Embroidery in Linen
Notes:

Title: Chartres Cathedral - Distant View
Date: c. 1145 CE
Artist/Location: Chartres, France
Style: Gothic
Material: Limestone
Notes:

Title: Chartres Cathedral - Facade
Date: c. 1145 CE
Artist/Location: Chartres, France
Style: Gothic
Material: Limestone
Notes:

Title: Chartres Cathedral - Royal Portal
Date: c. 1145 CE
Artist/Location: Chartres, France
Style: Gothic
Material: Limestone
Notes:

Title: Chartres Cathedral - Interior
Date: c. 1145 CE
Artist/Location: Chartres, France
Style: Gothic
Material: Limestone
Notes:

Title: Chartres Cathedral - Notre Dame de la Belle Vierre Window
Date: c. 1145 CE
Artist/Location: Chartres, France
Style: Gothic
Material: Limestone
Notes:

Title: Chartres Cathedral - Plan
Date: c. 1145 CE
Artist/Location: Chartres, France
Style: Gothic
Material: Limestone
Notes:

Title: Bible Moralisee - Blanche of Castile & King Louis IX
Date: c. 1225 CE
Artist/Location: France
Style: Gothic
Material: Illuminated Vellum
Notes:

Title: Bible Moralisee - Scenes from Apocalypse
Date: c. 1225 CE
Artist/Location: France
Style: Gothic
Material: Illuminated Vellum
Notes:

Title: Rottgen Pieta
Date: c. 1300 CE
Artist/Location: Germany
Style: Gothic
Material: Illuminated Vellum
Notes:

Title: Arena Chapel - Exterior
Date: c. 1305 CE
Artist/Location: by Giotto/Padua, Italy
Style: Gothic
Material: Brick and Fresco
Notes:

Title: Arena Chapel - Interior
Date: c. 1305 CE
Artist/Location: by Giotto/Padua, Italy
Style: Gothic
Material: Brick and Fresco
Notes:

Title: Arena Chapel - Lamentation
Date: c. 1305 CE
Artist/Location: by Giotto/Padua, Italy
Style: Gothic
Material: Brick and Fresco
Notes:

Title: Golden Haggadah - Plagues of Egypt
Date: c. 1320 CE
Artist/Location: Spain
Style: Gothic
Material: Illuminated Vellum
Notes:

Title: Golden Haggadah - Scenes of Liberation
Date: c. 1320 CE
Artist/Location: Spain
Style: Gothic
Material: Illuminated Vellum
Notes:

Title: Golden Haggadah - Preparation for Passover
Date: c. 1320 CE
Artist/Location: Spain
Style: Gothic
Material: Illuminated Vellum
Notes:
