1/30
Arte en la época de los Omeyas (Emirato independiente de Bagdad). - Arquitectura religiosa: La Mezquita de Córdoba. / Arquitectura civil: Medina Azahara.
Name | Mastery | Learn | Test | Matching | Spaced |
|---|
No study sessions yet.
CARACTERÍSTICAS GENERALES DE LA ARQUITECTURA OMEYA.
Sillería colocada a soga y tizón.
Soportes→Columnas.
Reutilización de elementos romanos y visigodos.
Capiteles→Corintios.
Arcos→Pasan de medio punto y de herradura a polilobulados, entrecruzados, túmidos y apuntados.
Cubiertas→Madera plana. Abovedamiento para las construcciones militares (puertas y torres) y civiles (baños y aljibes). Cúpulas de tipo bizantino y luego la bóveda califal.
Decoración→Labrada en sillares, mucha yesería. Motivos vegetal y geométrico. En la epigráfica se utiliza la cúfica.

FASE 1 - Mezquita de Abderraman I (731-788).
Comienza en el año 785.
- Mezquita hipóstila dividida en un patio y sala de oración.
- Quibla cerrada y orientada hacia el sur.
- Muros exteriores sencillos, asemejado visualmente a una fortaleza militar.
- Muros con perfil dentado y rematados con merlones.
- De la calle al patio hay tres puertas (una en cada lado).
- Planta sencilla horizontal.
- Espacio paralelo a los patios dividido en 11 naves perpendiculares al muro de la quibla y a su vez cada una dividida en 12 tramos por las arquería.
- La nave central es más ancha y las finales en cada extremo son más estrechas.
- Altura hasta la techumbre de 9 metros gracias al sistema de superposición de arcos.
- Se construye la Mezquita sobre terreno inestable y Abderramán I no se plantea hacer renovaciones. Todo va a la mierda con sus sucesores.

PUERTA DE SAN ESTEBAN / DE LOS VISIRES.
- Acceso exclusivo para el emir y sus visires.
- Se sigue este esquema para todas las puertas de la Mezquita.
DOS NIVELES:
- Primero→Vano ciego apoyado en modillones de rollo.
- Segundo→Sillares con decoración labrada en motivos de ataurique.
- Sobre la puerta se intuyen tres arquillos ciegos de herradura.

¿ Qué es el sistema de superposición de arcos ?
- Parte inferior→ Columna normal con capiteles diferentes entre sí.
Modillones de rollo en medio de la transición entre columna y pilar.
- Parte media→ Pilares más anchos colocados encima de esas columnas, desde aquí sale un arco de herradura.
-Parte superior→ Rematándolo todo un arco de medio punto con alternancia en el color de las dovelas.
Estos arcos se utilizan como acueductos para evitar humedad.

FASE 2 - ABDERRAMÁN II (822-852)
- Tira el muro de la quibla y alarga las arquerías 8 tramos más.
- Sistema de arquerías igual excepto que suprime los modillones (colocados en la transición de columnas a pilares).
- Continua reutilizando de columnas y capiteles.
- Búsqueda de la riqueza decorativa.
- Problema→ Inestabilidad de las cimentaciones.
FASE 3 - MUHAMMAD I (833-848)
- Ninguna renovación muy grande a la estructura en si, mayoritariamente renovación de ciertas zonas sobre todo con la decoración.
- Renovación de la puerta de San Esteban (remata la puerta adintelada con un arco de herradura).
- Establece el juego de la bicromía en las dovelas: rojo de ladrillo y blanco de yeso con decoración de ataurique.

FASE 4 - ABDERRAMÁN III (890-961)
- Periodo convulso.
- Construye una nueva ciudad (Ciudad palatina de Medina Azahara) y se proclama primer califa.
- Alarga el patio hacia el norte para equilibrar las ampliaciones de Abderramán II.
- Construye el llamado Patio de los Naranjos.
- Tres de sus cuatro lados son galerías abiertas.
- Tiene dos niveles: El superior funcionaba como alojamiento del almohedano y se accedía a través de dos cuerpos de escaleras simétricos que giran en torno a un machón central.
- Ambos son de planta cuadrada.
- Sobre el cuerpo superior se construye una cúpula con un remate de tres esferas superpuestas (yamur).
FASE 5 - AL-HAKAM II (915-976).
- Prolongación de las 11 naves de la mezquita hacia el Sur, añadiéndoles 12 tramos más y un doble muro de la qibla.
- La qibla anterior fue sustituida por unos arcos de herradura polilobulados, que hacen de fachada interior e indican al visitante que está en una zona arquitectónica nueva.
- En la nave central el arco de entrada da paso a un espacio abovedado de planta cuadrangular, que cumple la función lucernario, empezaba el espacio reservado a la máxima autoridad política y religiosa, la Macsura.
- El lucernario estaba cerrado por 3 pantallas de arcos polilobulados y entrelazados, conservándose de éstas sólo 2: las del Sur y Este.
- Los arcos se disponen sobre un doble orden de columnas de distinto módulo: el orden superior soporta 3 arcos de herradura, y el inferior 3 polilobulados.
LA CÚPULA DEL LUCERNARIO:
- La cubierta consiste en una cúpula formada por una bóveda de 8 nervios.
- La luz penetra mediante una corona de ventanas de arcos lobulados, que se abren en el muro entre los citados nervios.
- Este esquema se repite, de forma más perfecta, en los 3 lucernarios que se elevan delante del Mihrab, siendo de ellos el central el más espectacular del conjunto.
- A destacar los riquísimas teselas, obra de artesanos bizantinos, que adornan los nervios de la cubierta.
MIHRAB:
- En cuanto a la portada del Mihrab su zócalo cuenta con placas de mármol tallado con decoración de ataurique.
- El arco central reposa sobre jambas, en las que se integraron las columnas del Mihrab de Abderramán II.
- A la derecha del mihrab, la portada del sabat (pasadizo que une el alcázar con la maqsura). Era un espacio cerrado con un compartimento interior de cinco estancias que quedaban dentro del área de la mezquita
- De la cámara del tesoro sólo conservamos la fachada oeste.

FASE 6 - ALMANZOR (938-1002)
- Amplía la sala de oración hacia el este con 8 naves más.
- Hace una ampliación lateral.
- No alarga el muro de la quibla, deja un escalón, dándole la anchura de más a la sala.
- Amplía también el patio para armonizar el espacio.
- En las calles laterales dota de tres alturas en lugar de dos.
BAB AL-MARDUM o Mezquita del Cristo de la luz.
- Toledo, 999-100 por Musa Ibn Ali.
- Convertida en templo cristiano en el año 1085 por Alfonso VI.
- Planta cuadrada con dimensiones reducidas, (8×8, casi un cubo).
DOS FACHADAS:
De acceso al patio:
- Tres naves separadas por cuatro pilares.
- Tres entradas en la fachada que se corresponden con cada nave.
- Exterior en ladrillo a soga y tizón.
- Puertas realizadas con arcos de herradura califales a los que se le superponen arcos de medio punto ciegos.
- En la segunda altura pequeños arquillos de herradura con juego bicolor de dovelas ciegos.
- Superpuestos a ellos arquillos trilobulados.
- Sobre ellos un friso con ladrillos en esquina.
- Rematado todo con una cornisa con ménsulas de ladrillo.
De acceso a la medina:
- Tres puertas de acceso a las tres naves, cada una con diferentes arcos (central de mayor tamaño).
- Izquierda→ Polilobulado / Derecha→ Herradura califal.
- Encima de ellos unos arcos de herradura entrecruzados y cegados.
- Encima un friso de ladrillos de esquina que enmarca un damero romboidal.
- El remate superior igual que la otra.
INTERIOR:
- Cuatro columnas para hacer la división de naves.
- Arcos de herradura.
- Para enfatizar el espacio de la nave central que daría al mihrab del muro de la quibla, se desarrollan tres ábsides, dos de ellos con dos plantas y la central con tres plantas en altura.
- Variedad de arcos y bóvedas en función de los niveles.


MEDINA AZAHARA - Características básicas.
- Córdoba.
- Califato de Abderramán III (el primer emir que se declara califa).
- Comienza su construcción en el año 937 y termina en el 976.
- Localizado en la ladera de Sierra Morena (aprovecha infraestructuras hidráulicas previas romanas).
- Ciudad amurallada con torre de control y estancias para la guardia.
- Forma acodada que dificultaba el acceso.
- Construye una ciudad totalmente nueva para mostrar la grandeza de su poder.
- Es de dimensiones colosales.
- En el año 1010-1013, cae el califato y Medina Azahara es saqueada por bereberes y dejada en ruinas.
MEDINA AZAHARA - ¿ En qué partes se dividía ?
- Se asienta en tres aterrazamientos superpuesto, clasificado según importancia.
NIVEL SUPERIOR → Residencia real (alcázar) y edificios administrativos.
NIVEL INTERMEDIO → Jardines.
NIVEL INFERIOR → La ciudad en sí, clases más bajas y servicios.
- La puerta a la Medina estaba en el muro norte.
- Para llegar a la zona superior desde esa puerta se pasaba por el camino de los nogales.
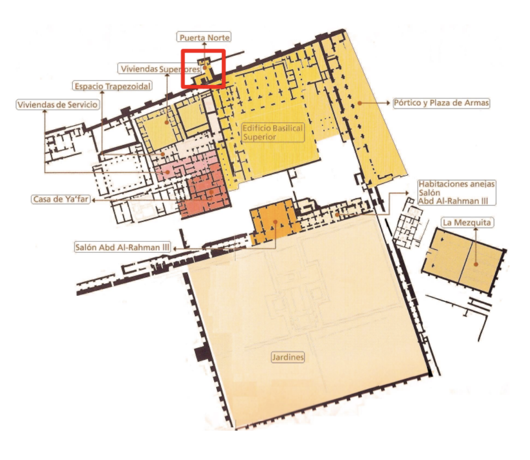
MEDINA AZAHARA - ¿ Cómo se dividía la zona superior ?
ZONA OESTE:
- Viviendas superiores → Dos en paralelo. Se distribuyen alrededor a grandes patios cuadrados en el centro (fuente). Acceso en rampa.
- Cuerpo de guardia → Punto intermedio entre las viviendas superiores y las viviendas de servicio. Misma estructura de estancias alrededor de patios centrales. Fue modificado por Al-Hakam II (se le añaden galerías superiores).
- Viviendas de servicio → Uso no confirmado. Teorías de que era residencia para el personal que abastece los servicios del Salón Rico de Abderramán III. Espacios de almacenamiento (grandes dimensiones pero con alas pequeñas).
ZONA ESTE:
- Portada central.
- Edificio de recepciones de gran tamaño.


MEDINA AZAHARA - Casa de Yafar - Características y partes.
TRES ZONAS:
Inicio→ Zona más pública o de representación. - De planta basilical con tres naves perpendiculares al patio y una transversal con una rica fachada de arco triple de herradura.
Norte→ Zona doméstica de servicio.
- Con patio interno y con un acceso independiente.
Residencia de Yafar y su familia.
- Con patios pequeños.
DECORACIÓN:
- Triple arcada con arcos de herradura califales en los que vemos el juego de dovelas.
- Enmarcado por un sistema de doble friso.
- Ataurique y lacería geométrica en las planchas de yeso de los muros.
- Pintura al fresco con alusión a la Mezquita de Córdoba.


MEDINA AZAHARA - Casa de la Alberca.
- Paralela a la Casa de Yafar.
- Residencia rectangular con un patio central.
- En el patio central hay un jardín dividido en dos, un paseador y una pequeña alberca rectangular.
- Salones paralelos al patio de forma rectangular, dos a cada lado.
- Estos salones están precedidos por pórticos con triple arcada de herradura con profusa decoración de ataurique.
- Se dice que fue residencia privada de Al-Hakam II.
- Fue modificada por Yafar.


MEDINA AZAHARA - Patio de los pilares.
- Al norte de la Casa de la Alberca.
- Patio protagonista, totalmente rodeado de pilares.
- No es un espacio residencial.
- Puede que se tratara de un espacio de reunión.


MEDINA AZAHARA - Casa Real (Dar al-Mulk).
- Residencia privada de Abderramán III.
- Localizada en la parte más alta de la zona del alcázar.
- Extrema riqueza decorativa de la piedra y los pavimentos conservados.
- El acceso se realiza a través de un patio principal.
- Se construye encima de una plataforma con una terraza (no conservada) y tres crujías paralelas.
- Al-Hakam II modifica este espacio para Hixam II.


MEDINA AZAHARA (ZONA ESTE) - Plaza de armas.
- Donde se hacían las paradas militares, los entrenamientos y la guardia se colocaba para recibir comitivas.
- Al fondo se encuentra el pórtico de 15 arcos (escarzanos).
- 4 de ellos no se conservan.
- Tras el pórtico, calle interior en rampa que lleva a la puerta en recodo que da acceso al edificio basilical.


MEDINA AZAHARA (ZONA ESTE) - Edificio basilical o Casa del ejército y Casa de los visires.
- Recibe diferentes nombres porque no sabemos su uso.
- O lugar donde se encuentra la corte (visires) o parada técnica donde se organizaba la caballería o zona de espera para el acceso al salón del trono.
- Planta basilical: 5 naves paralelas y una transversal precedida por una arquería.
- Fachada de 7 arcos de herradura, quedando la nave central enfatizada.
- Muro blanco y zócalo rojo.


MEDINA AZAHARA - Salón del Trono.
- Construido entre 953-957.
- Se dedicaba a las recepciones políticas.
- Precedido por enormes jardines.
- Planta basilical con 3 naves separadas por arquerías de herradura (bicolor) y un arco de herradura ciego a cada extremo.
- Edificio de gran tamaño (intención de impresionar).
- Tiene dos crujías laterales independientes de un carácter más privado (cuestión de jerarquía ?).
- Trono en el centro de la nave central (enfatizado con arco de herradura).
- Columnas alternando entre mármol negro y rosa.
- Decoración de yesería en ataurique en la parte superior y en el basamento y capitel de las columnas.
- Techumbre con motivos estrellados.


Bote de marfil de la catedral de Zamora (964).
-Encargado por al-Hakam II para una de sus esposas.
- Mayoría de decoración en ataurique.
- Formas propias del estilo califal y del arte omeya.
- Motivos vegetales y zoomorfos (gacelas y pavos reales) tanto en el cuerpo como en la cubierta.
- Parte superior cónica.
- Base con inscripción cúfrica con el nombre de la esposa.

Bote de marfil del príncipe al-Mughira (968).
- Encargado por al-Hakam II.
- Mayor profundidad de relieve (diferente taller), ataurique más esquemático.
- Escenas narrativas.
Escena cortesana:
- Tres figuras humanas (dos sentadas y en el centro una de pie tocando un laúd).
- Portan en sus manos objetos representativos (fusta, tarro de ungüentos, abanico).
- Leones como pedestales.
- TRANSICIÓN: Figuras de aves, soldados y animales reales e imaginarios.
Personas y pájaros:
- Dos figuras humanas dándose la espalda con el braozn levantado.
- No se sabe si están robando huevos de un nido o es una escena de cetrería.
- Terneros como pedestales.
Jinetes:
- Dos jinetes a caballo enfrentados.
- En medio una palmera con dátiles que están recogiendo.
Combate animal:
- Escena donde se enfrentan dos leones (poder califa) contra dos toros (dominación sobre la naturaleza).

EL PALACIO HUDÍ DE LA ALJAFERÍA - Exterior.
- Localizado en la primera taifa de Zaragoza gobernado por la dinastía hudí.
- Gobernador → Abu Yafar Al-Muqtadir construye este palacio de recreo de uso exclusivo para su familia.
- Construido desde 1060 a 1110.
- Planta “cuadrada” (adaptada al terreno).
- Tipo fortaleza, perímetro amurallado y jalonado con torres circulares.
- TORRE DEL TROVADOR → Torre rectangular de época pre-hudí.
- ACCESO → Por el paño de la muralla, puerta enmarcada por dos torreones y arco de herradura.


EL PALACIO HUDÍ DE LA ALJAFERÍA - El Patio de Santa Isabel.
- Interior dividido en tres ámbitos → Rectángulo central con jardín, el patio de Santa Isabel.
- Modelo de la Medina Azahara.
- Paseador central de norte a sur que divide la vegetación.
- Dos pequeñas albercas a cada lado.
- Dos crujías alargadas donde se situarían las dependencias (posiblemente para servidores).
- Rodeado por cuerpos de arquerías polilobulados.

EL PALACIO HUDÍ DE LA ALJAFERÍA - Pórtico norte.
- Pórtico norte del jardín.
- Pórtico llamado de recepciones.
- Precedido por una arquería de arcos polilobulados apoyados en columnillas con capiteles de ataurique de alabastro.
- Técnica de lacería entrecruzada.
- Salas de descanso en los laterales.

EL PALACIO HUDÍ DE LA ALJAFERÍA - Pórtico sur.
- Pórtico sur del jardín.
- Funciona como antesala para otra estancia en el sur.
- Complejo sistema de arcos polilobulados.
- Apoyados en pilares a las que se adquieren columnillas.

EL PALACIO HUDÍ DE LA ALJAFERÍA - Salón dorado / del trono.
- Cuerpo de arcos mixtilíneos entrecruzados.
- Acceso a las alanias de los extremos del salón.
- Arco de herradura califal al que se le superpone un arco de herradura polilobulado apuntado.
- Fondo del salón como el de Abderramán III → Gran arco ciego donde estaría ubicado el trono.
- Paredes con yeserías de ataurique y una banda epigráfica cúfica.
- Techumbre estrellada.

EL PALACIO HUDÍ DE LA ALJAFERÍA - Mezquita privada.
- Portada con arco de herradura festoneado.
- Encima un segundo cuerpo de arquillos de medio punto entrecruzados, festoneados y ciegos.
- INTERIOR → Forma octogonal. Arquillos de yesería. Banda epigráfica.

LA ALCAZABA DE MÁLAGA - Patio de los surtidores.
- La alcazaba mejor conservada.
- Compuesto de 7 viviendas pequeñas y un barrio militar.
- Fortificada con muralla y torreones de control de acceso.
- Segunda muralla dentro.
- El patio es un pequeño salón al que se accedía por una portada por ese triple arco de herradura con alternancia de dovelas (lisa / ataurique).
- A través se llegaba al MIRADOR DE MALDONADO.

LA ALCAZABA DE MÁLAGA - Mirador de Maldonado.
- Decorado en sus cuatro caras por arcos polilobulados entrecruzados.

El bañuelo (Baños).
- Uno de los pocos baño de la época califal que se conservan.
- Patio de entrada con una fuente central.
- A través del patio se llega a un vestuario.
- Y después a una zona de tránsito donde estarían las taquillas de pago.
PRIMERA SALA → Agua fría. Interior con columnas que soportan un pórtico.
SEGUNDA SALA → Agua templada. Zona más amplia. Bóveda de cañón con oquedades para luz y aire.
TERCERA SALA → Agua cálida. Horno al fondo.
