1/40
Looks like no tags are added yet.
Name | Mastery | Learn | Test | Matching | Spaced |
|---|
No study sessions yet.
Name the 4 senses through which we can experience arch. from most to least frequent. And one we do not
Sight
Touch (walking)
Hearing (acoustics)
Smell (wood)
Taste - no
Name a 6th sense that gives us an understanding of arch + examples of sensations it gives us
Intuitive perception - cold, warm, homely
Name the 5 scales of perception
Minor fragments
Major fragments
Mid-size complete planes (interior)
Big-size complete planes (exterior)
Complete building + context
What German word means “configuration”?
gestalt
What is the main concept of Gestalt?
We percieve things as a whole rather than individual components
Psychological connotations of a square/cube
stability, strength
Psychological connotations of a ciclre/sphere
movement, continuity
Psychological connotations of a triangle/tetrehedron
unsteadiness, agressivity

Name of building, architect, dates, movement
Public Library Stockholm, Asplund, 1920, introduces modern architecture in Scandinavia

Analysis of plan
Axis of symmetry and balance, regular shapes (rectangles and circle)

Influence and significance of monumental door
egyptian influence + highlights the function of the building - a library is a deposit of knowledge

Influence + significance of stairs
Acropolis, Athens + represents spiritual ascension
Give an example of a vertical building
Seagram by Mies van de Rohe
Give an example of a horizontal building
Robie House by Frank L. Wright
Name the two ways of analysing shapes in arch
objective description of forms
subjective experiences - heavy or light shapes, movement and rhythm
Name a characteristic of buildings with curves
the hard material appears soft (illusion)
How can a building appear “heavy”?
short and thick column

Name of building, period, where, significance
Panthenon of Adrian, 120 AD, Rome, purity of shapes


Significance of dome
largest unreinforced concrete dome + harmony between Earth and heavens + designed to reduce weight and appear to float

Significance of shapes
purity in monumental shapes

Name of building, architect, dates, place, key feature, movement
National Assembly Building, Louis Khanm 1901-1974, Bangladesh, monumentality, brutalism

Influences of Louis Khan
structural rationalism and Viollet Le Duc
Characteristic of Louis Khan
uses typical shape combinations

Analysis of plan
hierarchical, octagonal central chamber, radiating supporting blocks with secondary functions

Name of building, architect, period, where, movement
Villa Rotonda, Palladio, 16th century, Italy, Renaissance

Analyse this plan
the 4 axes converge under the central dome and transform into a vertical axis + main shapes include central square, 4 secondary squares, central circle

Singular feature about the façades of Villa Rotonda
the 4 façades are identical (not one dominant façade) - creates balance and visual clarity

Name of building, architect, dates, where, movement
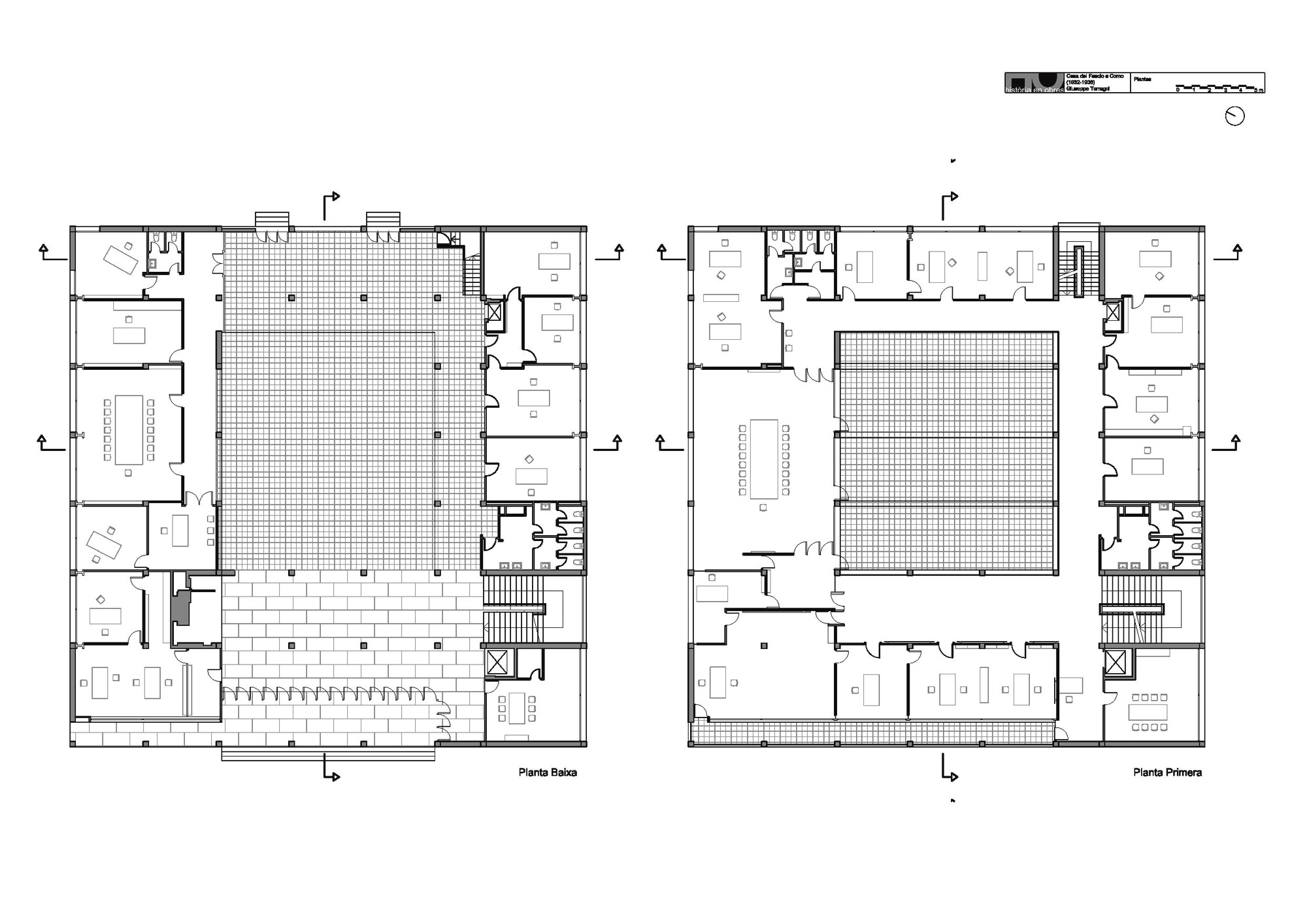
Casa del Fascio, Terragni, 1930s, Como, mature naturalism

What is inside the building
a courtyard
Name 3 ways that Casa del Fascio contradicts International Style
No pilotis (stilts elevating building)
No free façades
No horizontal ribbon windows
What is the effect of an open façade?
shadows - creates depth
Relationship of building with exterior
it is an extensions of the plaza - feels like a warm embrace

Name of building, architect, date
Orphanage in Amsterdam, van Eyck, 1960s

What layout does van Eyck use and which one does he reject?
city-like layout over a functionalist approach
What does a city-like layout include?
human-centered spaces with both private and communal spaces
What important feature did van Eyck use throughout this project? (e.g. playgrounds)
used primal shapes and created playgrounds that encouraged imaginative and physical play

What is the Golden Ratio based on?
human body proportions
Name 3 ways in which we understand a point in arch.
centre of a composition
projection of a building (tower)
an element with an implies isolation attitude (opening)
Name 4 things a line tells us about a building
height
horizontal component
inclination
curve
What are the 3 basic planes in arch?
base
roof
wall
Name the 2 types of volume
void volume
full volume