1/12
Looks like no tags are added yet.
Name | Mastery | Learn | Test | Matching | Spaced | Call with Kai |
|---|
No analytics yet
Send a link to your students to track their progress

What structure is this?
Single Track Cantilever
What is a single track cantilever used for?
2 track railway
What is a single track cantilever designed to support?
1 OLE wire run over 1 track
What are the advantages of single track cantilever
Cheap, easy to construct and adjust
What do cantilevers do?
Support the registration arm that hangs the contact wire

What structure is this?
Double cantilever
Where is a double cantilever used for?
At crossovers and overlaps
What are double cantilevers designed to support?
2 OLE wire runs over 1 track

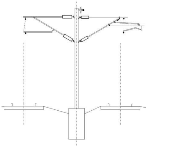
What is this?
A double cantilever
Is the double cantilever illustrate the principle of mechanically independent registration (MIR)?
Yes
What is meant by MIR in the context of a cantilever?
Each wire run has a support and registration which is independent on any other
Why is MIR an important attribute to have?
In the event of a dewirement or a wire run being damaged, other wire runs shouldn’t be impacted

What structure is this?
Back-to-Back Cantilever