1/40
Looks like no tags are added yet.
Name | Mastery | Learn | Test | Matching | Spaced | Call with Kai |
|---|
No analytics yet
Send a link to your students to track their progress

Site/ Location/ Built
Site: The Great Mosque (Masjid-e Jameh, Friday Mosque) of Isfahan
Location: Isfahan, present-day Iran
Expanded: ca. 1050–1180 CE
Seljuk Empire
Turkish tribe named Seljuk from Central Asia moved into Iran

iwan
In Islamic architecture, a vaulted space used as an entrance, or, if closed at one end, a hall facing a court in a madrasa or mosque.
Vaults could be plain, half-elliptical barrels, or more elaborately decorated with muqarnas.
muqarna (pl. muqarnas)
Decorative device in Islamic architecture, like a small pointed niche, used in tiers projecting over those below, usually constructed of corbelled brick, stone, stucco, or wood.
The Mongol Empire
Genghis Khan unified scattered Mongolian tribes- established Yuan Dynasty- largest empire in history. were consummate traders

Site/ Location/ Built
Site: Mosque-Madrasa of Sultan Hasan
Location: Cairo, presentday Egypt
Built: ca. 1360 CE
Mamluk Sultanate of Egypt
originally Turkish, Kurdish, and Mongolian slaves who had been raised as soldiers in the Ayyubid army and later established dominance over Egypt and pushed back against Christian crusaders, regained control over Mecca and Medina
mausoleum (pl. mausolea)
Any roofed building used as a tomb, detached or joined to another building (e.g., a church), containing coffins, sarcophagi, or urns, often on shelves
madrasa
An Islamic theological/legal place of instruction, usually with a court with iwan, accommodation, and study cells

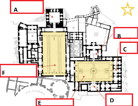
Type of Drawing/ Site
Plan/ Mosque- Madrasa of Sultan Hasan

A?
Entrance

B?
Madrasa

C?
iwan

D?
Madrasa

E?
Minaret

F?
Mihrab

G?
Tomb

H?
Mausoleum

I?
Qibla Iwan

J
minaret

K?
Madrasa

L?
Iwan

M?
Fountain

N?
Madrasa

O?
iwan

P?
Courtyard

Site/ Location/ Built
Site: The Alhambra
Location: Granada, present-day Spain
Built: ca. 1238–1358 CE

Type of Drawing/ Site
Plan/ Palace complex, Alhambra

A?
Hall of the Ambassadors

B?
Hall of the Two Sisters

C?
Hall of the Kings

D?
Hall of the Abencerrajes

E?
Court of the Lions

F?
Court of the Myrtles

Identify
Dome

Identify
Muqarnas “Dome”

Compare: Dome vs. Muqarnas “Dome”

Compare: Architecture as Narrative

Site/ Location/ Built
Site: Lalibela
Location: present-day Ethiopia
Built: 13th century CE

Site/ Location/ Built
Site: Great Zimbabwe
Location: present-day Masvingo Province, Zimbabwe
Built: ca. 1250–1450 CE

Site/ Location/ Built
Site: Great Mosque of Djenné
Location: Djenné, present-day Mali
Built: 13th century CE