1/196
Looks like no tags are added yet.
Name | Mastery | Learn | Test | Matching | Spaced | Call with Kai |
|---|
No analytics yet
Send a link to your students to track their progress

Sarcophagus with philosopher, orant, and Old and New Testament scenes, ca. 270. Rome.

Christ as the Good Shepherd, ca. 300–350. Rome

Restored cutaway view of Old Saint Peter’s (looking northwest, with later mosaics decorating the east facade), Rome, Italy, begun ca. 319

Restored plan of Old Saint Peter’s, Rome, Italy, begun ca. 319

Interior of Santa Costanza, Rome, Italy, ca. 337–351.

Plan of Santa Costanza, Rome, Italy, ca. 337–351

Mosaic in the ambulatory vault of Santa Costanza, Rome, Italy, ca. 337–351

Oceanus and Nereids, and drinking contest between Bacchus and Hercules, “Great Dish," from Mildenhall, England, mid-fourth century ce.

Old Farmer of Corycus, folio 7 verso of the Vatican Vergil, ca. 400–420. Biblioteca Apostolica Vaticana, Rome

Suicide of Judas and Crucifixion of Christ, plaque from a box, early fifth century

Woman sacrificing at an altar, right leaf of the diptych of the Nicomachi and the Symmachi, ca. 400.

Interior of Santa Sabina, Rome, Italy, 422–432

Exterior of Santa Sabina, Rome, Italy, 422–432.

Mausoleum of Galla Placidia (looking northeast), Ravenna, Italy, ca. 425

Interior of the Mausoleum of Galla Placidia (looking south), Ravenna, Italy, ca. 425.

Christ as Good Shepherd, mosaic from the entrance (north) wall of the Mausoleum of Galla Placidia, Ravenna,
Italy, ca. 425

Interior of Sant’Apollinare Nuovo (looking east), Ravenna, Italy, dedicated 504

Miracle of the Loaves and Fishes, mosaic from the top register of the nave wall of Sant’Apollinare Nuovo, Ravenna, Italy, ca. 504.

Archangel Michael, right leaf of a diptych, early sixth century

Anicia Juliana between Magnanimity and Prudence, folio 6 verso of the Vienna Dioskorides, from Honoratai, near Constantinople (Istanbul), Turkey, ca. 512

Justinian as world conqueror (Barberini Ivory), mid-sixth century

Anthemius of Tralles and Isidorus of Miletus, Restored cutaway view of Hagia Sophia (looking northwest), Constantinople (Istanbul), Turkey, 532–537

Anthemius of Tralles and Isidorus of Miletus, interior of Hagia Sophia (looking south- west), Constantinople (Istanbul), Turkey, 532–537

Aerial view of San Vitale (looking northwest), Ravenna, Italy, 526–547

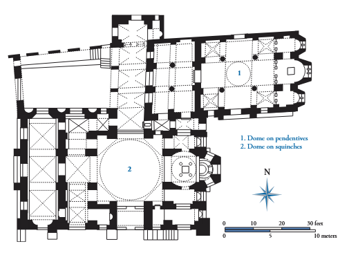
Plan of San Vitale, Ravenna, Italy, 526–547

Justinian, Bishop Maximianus, and attendants, mosaic on the north wall of the apse, San Vitale, Ravenna, Italy, ca. 547

Theodora and attendants, mosaic on the south wall of the apse, San Vitale, Ravenna, Italy, ca. 547

Saint Apollinaris amid sheep, apse mosaic, Sant’Apollinare in Classe, Ravenna, Italy, ca. 533 -549.

Transfiguration of Jesus, apse mosaic, Church of the Virgin, monastery of Saint Catherine, Mount Sinai, Egypt, ca. 548–565.

Rebecca and Eliezer at the Well, folio 7 recto of the Vienna, Genesis, early sixth century

Ascension of Christ, folio 13 verso of the Rabbula Gospels, from Zagba, Syria, 586

Virgin (Theotokos) and Child between Saints Theodore and George, icon, sixth or early seventh century. Monastery of Saint Catherine, Mount Sinai, Egypt.

Katholikon (looking northeast), monastery of Hosios Loukas, Distomo, Greece, first quarter of 11th century

Plan of the Church of the Theotokos (top) and the katholikon (bottom), monastery of Hosios Loukas, Distomo, Greece, second half of 10th and first quarter of 11th century, respectively.

Christ as Pantokrator, dome mosaic in the Church of the Dormition, Daphni, Greece, ca. 1090–1100

Crucifixion, mosaic in the north arm of the east wall of the Church of the Dormition, Daphni, Greece, ca. 1090–1100

Christ between Constantine IX Monomachos and Empress Zoe, mosaic on the east wall of the south gallery, Hagia Sophia, Constantinople (Istanbul), Turkey, ca. 1028–1035

Interior of Saint Mark’s (looking east), Venice, Italy, begun 1063

Pantokrator, Theotokos and Child, angels, and saints, apse mosaic in the cathedral, Monreale, Italy, ca. 1180–1190

Christ enthroned with saints (Harbaville Triptych), ca. 950. Ivory, central panel

Lamentation, wall painting, Saint Pantaleimon, Nerezi, Macedonia, 1164

Anastasis, fresco in the apse of the parekklesion of the Church of Christ in Chora (now the Kariye Museum), Constantinople (Istanbul), Turkey, ca. 1310–1320

Aerial view of the Great Mosque (looking east),Córdoba, Spain, 8th to 10th centuries; rededicated as the Cathedral of Saint Mary, 1236

Dome of the Rock (looking east), Jerusalem, 687–692.

Interior of the Dome of the Rock, Jerusalem, 687–692

Aerial view of the Great Mosque (looking southeast), Damascus, Syria, 706–715

Detail of mosaics in the courtyard arcade of the Great Mosque, Damascus, Syria, 706–715

Aerial view of the Great Mosque (looking north), Kairouan, Tunisia, ca. 836–875

Plan of the Great Mosque, Kairouan, Tunisia, ca. 836–875

Prayer hall of the Mezquita (Great Mosque), Córdoba, Spain, 8th to 10th centuries

Detail of the facade of the east gate of the Mezquita (Great Mosque), Córdoba, Spain, 961–965

Maqsura of the Mezquita (Great Mosque), Córdoba, Spain, 961–965

Aerial view of the Friday Mosque (looking southwest), Isfahan, Iran, 11th to 17th centuries.

Plan of the Friday Mosque, Isfahan, Iran, 11th to 17th centuries

Interior of the prayer hall of the Friday Mosque, Isfahan, Iran,11th to 12th century

Pyxis of al-Mughira, from Medina al-Zahra, near Córdoba, Spain, 968

Sulayman, ewer in the form of a bird, 796. Brass with silver and copper inlay,

Koran page with beginning of surah 18, 9th or early 10th century. Ink and gold on vellum,

Court of the Lions (looking east), Palace of the Lions, Alhambra, Granada, Spain, 1354–1391

Madrasa-mosque-mausoleum complex of Sultan Hasan (looking northwest with the mausoleum in the foreground), Cairo, Egypt, begun 1356.

Plan of the madrasa-mosque-mausoleum complex of Sultan Hasan, Cairo, Egypt, begun 1356.

Sinan, Mosque of Selim II (looking east), Edirne, Turkey, 1568–1575

Mihrab, from the Madrasa Imami, Isfahan, Iran, ca. 1354

Mosaic tilework of the minarets of the qibla iwan of the Friday Mosque, Isfahan, Iran, 16th century

Muqarnas tilework of the entrance portal of the Imam Mosque (formerly the Shah Mosque), Isfahan, Iran, 1611–1638

Maqsud of Kashan, carpet from the funerary mosque of Shaykh Safi al-Din, Ardabil, Iran, 1540.

Mosque lamp of Sayf al-Din Tuquztimur, from Egypt, 1340.

Bihzad, Seduction of Yusuf,
folio 52 verso of the Bustan of Sultan
Husayn Mayqara, from Herat, Afghani-
stan, 1488

Sultan-Muhammad, Court of Gayumars, folio 20 verso of the Shahnama of Shah Tahmasp, from Tabriz, Iran, ca. 1525–1535.

Calf bearer, dedicated to Rhonbos from the Acropolis, Athens, Greece, c. 560 BCE, Acropolis Museum, Athens

Malwiya Minaret (looking southwest), Great Mosque, Samarra, Iraq, 848–852

Dome in front of the mihrab of the Mezquita (Great Mosque), Córdoba, Spain, 961–965

Haydar, mihrab in the winter prayer hall of the Friday Mosque, Isfahan, Iran, 1310

Illuminated tughra of Suleyman the Magnificent, from Constantinople (Istanbul), Turkey, ca. 1555–1560

Sinan, view into the dome of the Mosque of Selim II, Edirne, Turkey, 1568–1575

Mausoleum of the Samanids (looking west), Bukhara, Uzbekistan, early 10th century

Frieze and plan of the Umayyasd palace, Mshatta, Jordan, ca. 740-750

Muqarnas dome, Hall of the Abencerrajes, Palace of the Lions, Alhambra, Granada, Spain, 1354–1391

Confronting lions and palm tree, fragment of a textile said to be from Zandana, near Bukhara, Uzbekistan, eighth century

Folio from the Blue Koran with 15 lines of surah 2, from Kairouan, Tunisia, 9th to mid-10th century.

Dish with Arabic proverb, from Nishapur, Iran, 10th century. Painted and glazed earthenware

Muhammad ibn al-Zayn, basin (Baptistère de Saint Louis), from Egypt, ca. 1300

Canteen with episodes from the life of Jesus, from Syria, ca. 1240–1250

Samuel anoint David, detail from interior of the synagogue, Dura-Europos, Syria, c. 245-256

Reconstruction of Chruch at Dura-Europos, Syria, c. 240-256

Reconstruction of the Baptistery of Baptistery, Dura-Europos, Syria, c. 240-256 CE

Hercules bringing Alcestis back from Hades to her husband Admetus in Cubiculum N, Via Latina Catacomb, c. 320-360 CE, fresco, Rome

Daniel in the Lion’s Den in Catacomb of Via Latina, 4th century, fresco Rome

Christ as the Good Shepherd, surrounded by the Stories of Jonah, orants and the Seasons, from a cubiculum in the Catacombs of Marcellinus and Peter, fresco, early fourth century, Rome

Sarcophagus of Junius Bassus, c. 359, marble, Museo Tresoro, Basilica di San Pietro, Vatican

Asiatic sarcophagus, from Rapolla, Italy, c. 165-170 CE, marble, Museo Nazionale Archeologico del Melfese, Melfi,

Aula Palatina, or , 300 – 310 CE, Trier, Germany

West doors of Santa Sabina, wood, c. 432 CE, Santa Sabina, Rome

Interior of Santa Maria Maggiore, extensively remodelled, but founded in 1432

Annunciation and Adoration of the Magi, mosaics on chancel arch, Santa Maria Maggiore, Rome, c. 432-440, mosaic

The Arch of Constantine, constructed between 312-315 CE, including reliegs from monuments dedidated to Trajan (98-117), Hadrian (117-138) and Marcus Aurelius (161-180)

Obelisk of Theodosius, Constantinople, 390

Blackburry busy from the Vienna Dioskorides, c. 512

Apse mosaic showign Christ between two angels, Saint Vitalis and Bishop Ecclesius, San Vitale, Ravenna, mosaic, 526-47

Throne of Maximianus, c. 546-556