1/21
ARC 2701/5711: History of Design from Antiquity to the Middle Ages/ Instructor: Elliott Sturtevant. Review for lecture 14: 10.29.2025. Some questions are added because it helps build context for the era, look at notes provided to expand on why the info was included in this stack and how it connects to the themes of this lecture overall.
Name | Mastery | Learn | Test | Matching | Spaced |
|---|
No study sessions yet.

Site/ Location/ Built
Site: Basilica of Constantine (Aula Palatina)
Location: Trier, Germany
Built: ca. 300–310 CE

what kind of drawing is this? Of what?
Section of Basilica of Constantine

what kind of drawing is this? Of what?
axonometric view of Basilica of Constantine

what kind of drawing is this? Of what?
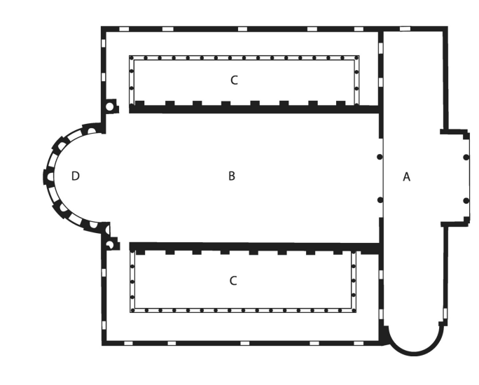
Plan of Basilica of Constantine,

What is location A?
Atrium

What is location B?
Main Hall

What is location C?
Peristyle Court

What is location D?
Apse

Site/ Location/ Built
Site: Basilica of Maxentius and Constantine
Location: Rome, Italy
Built: ca. 306–312 CE

what kind of drawing is this? Of what?
Plan, Basilica of Maxentius and Constantine
Martyr definition
A person who voluntarily suffers death as the penalty of witnessing to and refusing to renounce religion
martyrium
A building or chamber used by the early Christians as a burial place- A place where the relics of martyrs are preserved
Reasons for fall of the Roman Empire
Weakened army and foreign mercenaries
dwindling tax base
plagues and earthquakes
Basilica definition
rectangular walled structure with an open hall extending from end to end , usually flanked by side aisles set off by colonnades and a raised platform at one or both ends
nave defintion
The central and principal part of a Christian church, extending from the narthex to the transepts or to the chancel
nave in a basilica defintion
In a basilican church, which has side aisles, the nave refers only to the central aisle
aisle
The portion of a church or basilica that parallels or encircles the major sections of the structure, such as the nave, choir, or apse
narthex
A long, narrow, enclosed porch, usually colonnaded or arcaded, crossing the entire width of a church at its entrance

Site/ Location/ Built
Site: Hagia Sophia
Location: Constantinople, present-day Istanbul, Turkey
Built: ca. 532–537 CE

what kind of drawing is this? Of what?
section, Hagia Sophia

what kind of drawing is this? Of what?
plan, Hagia Sophia

Site/ Location/ Built
Site: Debre Damo
Location: present-day Ethiopia
Built: 6th century