1/93
Looks like no tags are added yet.
Name | Mastery | Learn | Test | Matching | Spaced | Call with Kai |
|---|
No study sessions yet.

Sie sehen ein verputztes Einsteinmauerwerk. Wozu dient die Putzarmierung?
Verhinderung von Rissen im Putz aufgrund von Bewegungen in der Konstruktion

Sie sehen denn Schichtenaufbau eines Flachdaches. Wozu dient die Gleitlage?
Ermöglicht die voneinander unabhängige Bewegung einzelner Schichten

Benennen Sei das System dieses Flachdaches.
Kaltdach
Wozu dient der Fensteranschlag? (2 richtige Antworten)
Zur Befestigung des Rahmens
Wozu dient der Fensteranschlag? (2 richtige Antworten)
Zur Aufnahme von Bautoleranzen

Um was für eine Verglasung handelt es sich hier
Isolierverglasung

Nennen Sei den Oberbegriff für diese Stahlprofile.
Hohlprofile
Der Stahlbau ermöglicht große Spannweiten mit wenig Material, was sicher ein Vorteil ist. Was ist ein Hauptnachteil des Materials und führt oft zu großen Einschränkungen?
Geringer Brandwiderstand

Um was für eine Konstruktion handelt es sich?
Profilblech-Verbunddecke
Wo muss die Dampfsperre /Dampfbremse angebracht werden?
Warmseitig vor der Wärmedämmung
In Zusammenhang mit Dämmkonzepten spricht man oft von komplementären Systemen (Schichtenaufbau). Was ist das charakteristische Merkmal der komplementären Systeme?
Der hierarchischen Funktionssplit in Tragen, Dämmen und Schützen

Sie sehen eine Sichtmauerwerk-Konstruktion. Wozu dient der Spalt zwischen äußerer Backsteinschicht u. Wärmedämmung?
Wegführen von Feuchtigkeit
Wie hoch ist die Rohdichte von Normalbeton?
2400-2550 kg/m3
Welches sind die Ausgangsprodukte/Rohstoffe für Portlandzement?
Kalkstein und Mergel/Ton
Womit können Eigenschaften des Betons wie z.B. Verarbeitbarkeit, Abbinden, Erhärten oder Frostwiderstand stand beeinflusst werden?
chemische Zusatzstoffe
Worauf muss bei der Dimensionierung und Anordnung der Bewehrung, abgesehen von der Statik, zusätzlich geachtet werden?
Die … muss zwischen dem Bewehrungsstahl hindurchgeführt werden können

Wie nennt man diese Schalungsart?
Rahmenschalung
Worauf ist nach dem Betonieren zu achten?
Dass der Beton seine Feuchtigkeit möglichst lange behält.

Benennen Sie diese Betonoberfläche.
gewaschene Oberfläche

Nennen Sie den Oberbegriff für diese Stahlprofile.
Breitflanschträger
Was ist neben dem Tragen eine Hauptaufgabe des Hüllbetons bei einem Verbundtragwerk aus Stahl und Beton?
Brandschutz des Stahlprofils

Um was für eine Konstruktion handelt es sich?
Spannbetonhohldecke
Was können Probleme, bei Kondensation, innerhalb der Konstruktion sein? (2 richtige Antworten)
Fäulnis
Was können Probleme, bei Kondensation, innerhalb der Konstruktion sein? (2 richtige Antworten)
Feuchte Wärmedämmung ist unwirksam
Im Zusammenhang mit Dämmkonzepten spricht man oft von komplementären Systemen (Schichtenaufbau). Was ist das charakteristische Merkmal der komplementären Systeme?
Innendämmung

Sie sehen eine Ecklösung in einem Zweischalenmauerwerk mit einer Dilatationsfuge. Wozu dient die Dilatationsfuge?
Aufnehmen von Bewegungen

Benennen Sie folgendes Stahlprofil.
IPE

Wie nennt man dieses Bauteil?
Lochträger
Wie kann Kondensation innerhalb der Konstruktion zuverlässig verhindert werden? (2 richtige Antworten)
Durch eine innenseitige Dampfsperre
Wie kann Kondensation innerhalb der Konstruktion zuverlässig verhindert werden? (2 richtige Antworten)
Durch Hinterlüftung der Konstruktion

Sie sehen den Wandaufbau als Zweischalenmauerwerk. Wozu dient der Abstand mit stehender Luft zwischen äußerer Schale u. Wärmedämmung?
Platz für herausquellenden Mörtel/Bautoleranz

Diese Konstruktion schafft eine Wärmebrücke. Wie kann dieses Problem gelöst werden? (2 richtige Antworten)
Dämmeinlagen in der Decke einlegen

Diese Konstruktion schafft eine Wärmebrücke. Wie kann dieses Problem gelöst werden? (2 richtige Antworten)
Deckenanschluss trennen mit Ankerkorb o. Schubdorn

Sie sehen einen Wandaufbau für Sichtbeton mit Innendämmung. Was bedeutet die vertikale gestrichelte Linie in der Wärmedämmung?
Dampfdichte Wärmedämmung

Was bedeutet die horizontale Linie im Beton?
Die Linie bezeichnet eine Betonier Etappe

Sie sehen den Schichtenaufbau eines Flachdaches. Wozu dient die Dampfsperre?
Verhindert eine Durchfeuchtung der Wärmedämmschicht

Benennen Sie das System dieses Flachdaches.
Warmdach
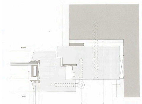
Wozu dient die Falzung beim Fenster?
Verhindert das Eindringen von Wind und Wasser
Bei welcher ungefähren Temperatur werden Ziegelsteine gebrannt?
1000°C

Benennen Sei diese Mauerwerk-schicht.
Rollschicht

Benennen Sei diese Mauerwerk-Schicht.
Läuferschicht

Benennen Sie diese Mauerwerk-Schicht.
Binderschicht
In welchem Verhältnis stehen Länge und Breite von gewöhnlichen, handelsüblichen Ziegelsteinen zueinander?
Die Steinlänge entspricht zwei Steinbreiten zuzüglich einer Stoßfuge

Wie heißen diese Fugen?
Stoßfuge

Wie heißen diese Fugen?
Lagerfuge

Benennen Sie diesen Mauerwerk-Verband.
gotischer Verband

Benennen Sie diesen Mauerwerk-Verband.
märkischer Verband
Was passiert beim Brennen von Backsteinen?
Sinterung
Das Mauerwerk besteht aus Ziegelsteinen, die miteinander zu Mauern verbunden werden. Womit werden die Mauerziegel verbunden?
Mörtel
Wie hoch ist eine normale Lagerfuge?
8-12mm

Wie heißt dieses Bauteil, das beim Mauerwerk eingesetzt wird?
Gelenkanker
Durch behinderte, lastunabhängige Formänderungen, z.B.: Schwinden und/oder Temperaturbeanspruchungen, können Risse im zweischaligen Mauerwerk entstehen. Wie kann diese Rissbildung verhindert werden?
Durch geschickte Anordnung von Fugenbewehrung
Wozu dient die Sickerleitung bei Fundamenten?
Ableitung des Oberflächenwassers
Was ist das minimale Gefälle bei einem konventionellen Flachdach?
1,5°

Benennen Sei das System dieses Flachdaches.
Kaltdach
Wozu dient der Fensteranschlag? (2 richtige Antworten)
Zur Befestigung des Rahmens
Wozu dient der Fensteranschlag? (2 richtige Antworten)
Zur Aufnahme von Bautoleranzen
Wozu dient die Glashalteleiste?
Zur Befestigung der Verglasung

Benennen Sie das System dieses Flachdaches.
Umkehrdach

Um was für ein Fenster handelt es sich hier?
Holzfenster
Zement ist ein hydraulisches Bindemittel. Was versteht man darunter?
ein Binde mittel, das sowohl unter Luft als auch unter Wasser erhärtet

Benennen Sei diese Darstellung, die bei der Beton Herstellung große Bedeutung hat.
Siebkurve

Benennen Sei diese Bauteile.
Bewährungsstäbe

Mit was für einer Schalung wurde diese SichtbetonOberfläche geschalt?
Bretterschalung
Was ist der Sinn des Vibrierens im Betonbau?
Verdichtung des Betons

Benennen Sei diese Betonoberfläche
gespitzte/gestockte Oberfläche
Wie werden handels-übliche Ziegelsteine geformt?
im Strangpresseverfahren
Bei der Betonherstellung wird die Korngrößenverteilung der Zuschlagstoffe mit der sogenannten Siebkurve bestimmt. Was ist das Ziel einer optimalen Korngrößenverteilung?
Kleine Hohlräume und damit höhere Festigkeit
Was wird bei der Betonherstellung mit der sog. Siebkurve bestimmt?
Die Korngrößenverteilung der Zuschlagstoffe
Stahlbeton ist ein Verbundbaustoff aus Beton und Stahl. Was bedeutet das?
Übernahme der Zugspannungen durch die Bewehrung. Aufnahme der Druckkräfte durch den Beton.
Wozu dienen die Verbindungen zwischen den zwei Schalungsseiten?
Als Abstandhalter
Was passiert mit Stahl unter Brandeinwirkung?
starke Verformung

Benennen Sie das Dämmkonzept.
Außendämmung
Beton wird durch Mischen von Zement, Wasser und Zuschlagstoffen hergestellt. Welches ist der mengenmäßig größte Anteil im Beton?
Zuschlagstoffe
Wie nennt man den Teil der Mauer über der Fensteröffnung?
Sturz
Wie können Arbeitsfugen im Ortbetonbau verhindert werden?
geht nicht, sie müssen miteingeplant werden
Der Gelenkanker verbindet die zwei Schalen eines Zweischalenmauerwerks. Weshalb braucht es ein solches Gelenk?
Um die unterschiedlichen Bewegungen der äußeren und inneren Schale aufzunehmen.

Sie sehen den Anschluss zwischen einer außengedammten ̈ Backsteinwand und einer Betondecke. Wozu dient die Trennlage? (2 richtige Antworten)
zur Aufnahme von Bautoleranzen

Sie sehen den Anschluss zwischen einer außengedammten ̈ Backsteinwand und einer Betondecke. Wozu dient die Trennlage? (2 richtige Antworten)
als Gleitlage
Bei welcher Temperatur wird Portlandzement gebrannt?
1.450°C
Was bedeutet es Ziegelsteine „knirsch“ zu vermauern?
ohne Stoßfugenmörtel

Was ist das Problem bei dieser Betondecke?
die treibende Wirkung des Rosts hat zu einem Abplatzen der dünnen Betonuberdeckung geführt
Was ist das Problem von undichten Schalungen beim Betonieren?
Entweichen des Zementleims beim Verdichten

Warum ist diese Außenwandkonstruktion problematisch? (2 richtige Antworten)
Kondensationsbildung an der Deckenunterschicht

Warum ist diese Außenwandkonstruktion problematisch? (2 richtige Antworten)
Wärmebrücke

Wie ist dieses Fenster angeschlagen?
Innenschlag
Worauf muss bei der Dimensionierung und Anordnung der Bewehrung zusätzlich geachtet werden?
Die Vibriernadel muss zwischen dem Bewehrungsstahl hindurchgeführt werden.
Was versteht man bei einem Mauerverband unter „Überbindung“?
das Maß des Übergreifens der Steine einer Schicht über die der darunter liegende Schicht

Benennen Sie das Dämmkonzept.
Innendämmung
Welche Aufgabe übernimmt die Dilatationsfuge im Betonbau?
Dehnungsfugen zur Unterbrechung von längeren Bauteilen dienen der Vorbeugung von Spannungsrissen

Um was für eine Fugenausbildung handelt es sich hier?
hervorquellende Fugenausbildung

Benennen Sie diese Art des Fensteranschlages.
Außenanschlag