1/53
Looks like no tags are added yet.
Name | Mastery | Learn | Test | Matching | Spaced | Call with Kai |
|---|
No analytics yet
Send a link to your students to track their progress

Maximianova stolica, Ravenna, 547.

Barberini diptih, Konstantinopol, 527.

Kapela sv. Venancija, Rim (Lateranska bazilika), 640. - 642.

Sant’Apollinare in Classe, 532. - 549.

Hagia Irene, Konstantinopol, 532.

San Vitale, Ravenna, 526. - 548.

Sveti Sergije i Bakho, Konstantinopol, oko 527.

Aja Sofija, Konstantinopol, 532. - 537.

Teodorikov mauzolej, Ravenna, 526.

Sant’Apollinare Nuovo, Ravenna, kraj 5.st. / početak 6.st.

Arijanski baptisterij, Ravenna, kraj 5.st. / početak 6.st.

San Giovanni Evangelista (Galla Placidia), Ravenna, 426. - 430.

Stefano Rotondo, Celij (Rim), 468. - 483.

San Simpliciano, Milano, kasno 4. st.

Santa Maria Maggiore, Rim, 432. - 440.

San Giovanni e Paolo, Rim, 410. - 420.

Santa Croce (430.) i mauzolej Galla Placidije (430. - 450.) ,Ravenna

Sveta Marija Efeška, 400-tih

Sveti Ivan Efeški, 450-ih

Sveti Ivan Studios, Konstantinopol, 450-ih

Acheiropoietos, Solun, 450. - 470.

Santa Pudenziana, Rim, kraj 4.st. / početak 5.st.

Baptisterij ortodoksnih, Ravenna, 451. - 475.

Ursiana, Ravenna, kraj 4.st. / početak 5.st.

Sveti Petar, Rim, oko 324. - 333. (sv. Petar “stari”, izvan zidina)

Ambrozijevi sveti Apostoli, Milano, 382.

San Lorenzo, Milano, 378.

Anastasis Rotunda (crkva sv. Groba), Jeruzalem, 4.st.

Apostoleion (sveti Apostoli), Konstantinopol, 337.

Grobljanska bazilika svete Agneze i mauzolej svete Konstance, Rim, 350.

Sarkofag dvojice braće, Rim, sredina 4.st.

Adelfijin sarkofag, Rim, 340.

Sarkofag Junija Bassa, 359.

Relikvijar, Samagera (Pula), 5.st.

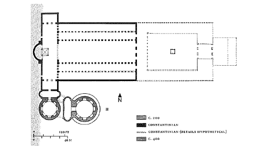
Lateranski baptisterij, Rim, nakon 324.

Sveti Ivan Lateranski, Rim, 313. - 324.

Katedrala u Trieru, 326.

Katedrala u Orleansvilleu, 324.

Akvilejska katedrala, 313. - 319.

Sveti Šimun Stilita, Alep, Sirija, 5.st.

Maksencijeva i Konstantinova bazilika, 308. - 312.

Santa Sabina, Aventin (Rim), 432. - 440.

Sarkofag Dobroga Pastira, Praetextove kat., kraj 3.st. ili početak 4.st.

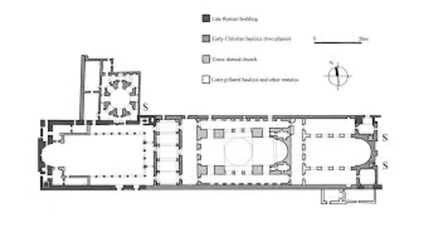
Kompleks biskupa Teodora, Pula, početak 4.st.

Santa Pudenziana, Rim, kraj 4.st. / početak 5.st.

mozaik, Santa Maria Maggiore, Rim, 432. - 440.

Konstancin sarkofag, Vatikan, sredina 4.st.

San Simpliciano, Milan, kasno 4.st.

Sol Invictus, Vatikanske grotte, 3. - 4.st.

Povorka svetaca, Sant’Apollinare Nuovo, Ravenna, kraj 5.st. / početak 6.st.

Justinijanov stup, Rim, 543. - 544.

Crkva rođenja, Betlehem, 333.

Dura europos, oko 230. - 250.

Katedrala Marijina Uznesenja, Pula, 5.st.