1/915
Looks like no tags are added yet.
Name | Mastery | Learn | Test | Matching | Spaced | Call with Kai |
|---|
No analytics yet
Send a link to your students to track their progress
Situation 1: Given a Residence housing a family compose of a Couple, their 2 Teenage Kids and 2 House Helpers
1. What is the size of the Supply Pipe from Distributing Main to Primary Branch?
a. 75mm
b. 50mm
c. 100mm
d. 65mm
b. 50mm

Situation 1:
2. What is the minimum size of T&B for this family
a. 1.20sqm
b. 1.50sqm
c. 1.80sqm
d. 2.00sqm
a. 1.20sqm (Small side: 0.9 m)
Situation 1:
3. Which is NOT installed underground?
a. Septic Tank
b. Cistern
c. Manhole
d. Downspout
d. Downspout

Situation 2: In a Townhouse development project...
1. Who is in-charge of "roughing in" of the sanitary pipes
a. Mason
b. Labor
c. Foreman
d. Plumber
d. Plumber
Situation 2:
2. Who is in-charge of plotting points and staking at the site?
a. Architect
b. Owner
c. Engineer
d. Foreman
a. Architect (check permit works)
Situation 2:
3. Which is an illegal thing to do...
a. Booster pump directly getting water directly from water main then distributed to the Townhouse units
b. Tap directly from water main then directly to the fixture units
c. Provide a cistern then provide water to the townhouse units
d.
a. Booster pump directly getting water directly from water main then distributed to the Townhouse units

Situation 2:
4. Where would you least place a PVC Pipe?
a. Under the carport
b. Underneath a tree
c.
d.
b. Underneath a tree

Situation 2:
5. Which of the following lamps has the filament?
a. Incandescent
b. LED
c. Fluorescent
d.
a. Incandescent

Situation 3: You were tasked to design a call center office. The manager specifically told you that he wanted to keep a close watch on his staff.
1. Modular cubicles are installed in the office. How many outlets per cubicle would you recommend if the office uses UPS?
a. 0
b. 1
c. 2
d. 3
c. 2
Uninterruptible Power Supply (UPS)
Power Distribution Unit (PDU)
Note: Verify Answer! (b. 1) ?

Situation 3:
2. What type of wall for the cubicles would you recommend taking into consideration acoustics and the manager's instruction for visual acuity?
a. low wall modular partition with glass strips at the middle
b. glass
c. dry wall partition
d. CHB
a. low wall modular partition with glass strips at the middle

Situation 3:
3. What type of device will you use to amplify the wifi connection coming from the main server?
a. LAN
b. Router
c. PABX
d. CCTV
b. Router

4. What would you install if the manager wants a local connection as well as an outside line?
a. LAN
c. PABX
b. Router
d. CCTV
c. PABX (Private automatic branch exchange)

5. What type of local data sharing device is appropriate for the office?
a. LAN
c. PABX
b. Router
d. CCTV
a. LAN

6. What type of device should be installed for surveillance?
a. LAN
b. Router
c. PABX
d. CCTV
d. CCTV

Situation 4: Given a Water Supply Plan & Isometric Layout of Ground Floor & Second Floor...
1. Locate the Angle Valve
Angle Valve - 90 deg. turn
Used for Lavatory, Kitchen, W.C, etc.

2. Where is the highest pressure?
a. 2nd Floor
b. Underground
c. Ground Floor
d. At the Vertical Pipe
b. Underground
3. What Fitting is used when there is a change in direction?
90 deg. Elbow or 1/4 Bend

Situation 5: In a convenience store... questions regarding air-conditioning system...
1.How many tonners will you use (several choices are given) the required is 12- 13tons based on computations...
a. 1 10-tonner
b. Three 4-tonners
c. Two 3-tonner plus one 4-tonner
d.
c. Two 3-tonner plus one 4-tonner
Solution: (Area of room x 25BTU)
2. What will you provide in the entrance door to control air from coming in and out
a. Air Curtain
b. Exhaust Fan
c. Dehumidifier
d.
a. Air Curtain

3. Where will you locate the ACCU of the convenience store?
a. on the ceiling
c. in front of the store
b. outside the store
d.
b. outside the store

4. Which is not needed in the said system?
a. ACCU
c. AHU
b. FHU
d. Condenser Drain Pipe
b. FHU
Note:
ACCU - Outside
AHU - Inside
Split Type (Condenser Drain Pipe) - 3m max. length, copper tube
Situation 6: a home theatre is to be renovated...
1. What will you use on the walls to minimize sound transmission.
a. CHB
c.
b. Gypsum Board on studs
d.
b. Gypsum Board on studs
2. What part of the wall will you cover?
a. Upper panel
c. Edges of the Door
b. Lower Panel
d. Face of the Door
c. Edges of the Door (Rubber Seal)

3. What inexpensive yet effective wall treatment will you suggest?
a. Sawali
b. Egg crate
c. Bamboo
d.
b. Egg crate

4. What flooring finish is the best to use?
a. Carpet tiles
b. Wood planks
c. Vinyl Tiles
d. Linoleum
b. Wood planks

5. What type Of door Will you use?
a. Flush with hollow core
b. Panel type
c. PVC Door
d.
b. Panel type

Situation 7: Bunso is watching Cartoons inside the Movie Room constructed with Drywall Partitions. Ate is studying at the room adjacent the Movie Room...
1. Will ate hear what Bunso is watching?
a. Yes
b. No
c. Definitely not
d. Ate will slightly hear the Cartoons
d. Ate will slightly hear the Cartoons

Situation 8: A client wants to open a Dance Studio on the ground floor of a building. The existing room for the studio is fronting the road and the floor above is an office area.
1. What materials should be used on the flooring and on the ceiling?
Suspended Acoustical Tiles (Ceiling)
Wood planks (Flooring)

2. What material should be used at the front facing the road?
Bricks

Situation 9: A client awarded you to design a medium-end BPO Office to be in an existing residential house of 1000 sq.m. It will be a renovation project.
1. In consideration of the cables, what system will you use to conceal them?
a. Raised Floor Systems
c. Dry Walls
b. On the Ceilings
d.
a. Raised Floor Systems

2. If data are needed to be shared with others. what system is appropriate?
a. LAN
b. Router
c.
d.
a. LAN
3. What communication system is used to link one office to another for a private dialogue?
a. Intercom
c. Telephone Door Entry System
b. PABX
d. Fax
a. Intercom

4. If data need to be amplified from the main server, what system is needed?
a. Router
b. LAN
c. PABx
d.
a. Router
Situation 10: You were asked to design the parking lot for a mall and a hotel. Among your concern will be the safe vertical height for vehicles to pass.
1. What is the highest point from which vertical clearances are based?
a. Slab
b. Beams
c. Pipes
d. Pipe Supports
d. Pipe Supports
Situation 11: Your architectural team is designing a 3-storey Hospital...
1. How many elevators would you suggest?
a. Three, one for every floor
b. One, but it is ideal to have one for passengers and one for the patients in stretchers
c. Only one for passengers
d. Only one for patients
b. One, but it is ideal to have one for passengers and one for the patients in stretchers
2. What type of elevator would you suggest?
a. Electric
c. Either traction or hydraulic
b. Machine room-less
d.
c. Either traction or hydraulic
3. A vertical-pipe extending from a water supply, especially one connecting a temporary tap to the main.
a. Siamese Connection
b. Standpipe
c. Vent
d.
b. Standpipe
4. Which fire suppression system is not integrated in the building structure?
a. Wet Standpipe
b. Dry Standpipe
c. Fire Extinguisher
d. Sprinkler
b. Dry Standpipe
5. How many dry standpipe will you use?
a. 3
b. 2
c. 0
d. 1
c. 0
6 Where is the best location for a Dry Standpipe
a. Stairway
b. Pipe Chase
c.
d.
a. Stairway
Situation 12: You were commissioned to erect a 9-Storey residential condominium along C5 road.
1. How many elevators would you recommend?
a. One Traction Type
b. Minimum of Two
c. One Hydraulic Type
d. None of the above
b. Minimum of Two
2. The last habitable storey of the condo is the 9th floor, but it has a rooftop with garden open for all occupants. The elevator's machine room is 1.20hgt. from the headroom of the rooftop. Where would you locate the last stop of the elevator?
c. At the 8th floor
a. At the rooftop
d. There is no need for an elevator
b. At the ninth floor
b. At the ninth floor

3. Which of the following would you least locate adjacent a lobby?
c. Elevator entrance
a. Service stairs
d. Lounge
b. Garbage chute
b. Garbage chute
4. Using an illustration (provided), how many (0.60m x 0.60m) floor tiles will be used at the kitchen, dining area, and living area with allowance?
On the floor plan, the exact size per area was given in square meters. For example: Kitchen (12.50 sqm), Dining (14.20 sqm), Living Area (16.50 sqm). Disregard other sections merging with the required areas like the foyer and hallway. The figures won't tally but get the closest answer using 15% allowance.
138
5. Which Fire Assembly is NOT necessarily integrated in the building
a. Dry Standpipe
b. Wet Standpipe
c. Fire Sprinkler System
d. Fire Extinguisher
a. Dry Standpipe
Situation 13: Owner A decides to hire an electrician to work for him instead of a professional electrical engineer. Upon roughing-in and installation, the electrician proposed to the Owner to alter the specified wires into bigger sizes in order to accommodate larger electrical loads. The Owner agrees as it seems to be reasonable and he was confident because his house was equipped by circuit breakers. Several days later, Owner A's house burned down. After inspection by the Bureau of Fire Protection, it was learned that the fire was caused by faulty electrical connection.
1. Why didn't the circuit breakers function as designed?
a. The Circuit Breakers did not "trip" due to the over-sized wires
b. The Circuit Breakers were not installed properly
c. The Circuit Breakers were poor in quality
d.
a. The Circuit Breakers did not "trip" due to the over-sized wires
2. Who should be blamed for the incident?
a. The Architect, for not supervising the work done
b. The Owner, for not hiring a Professional Electrical Engineer
c. The Electrician, for not following the Specifications
d. All of the Above
d. All of the Above
3. Who should make the first move to settle the problem?
a. The Architect, Arbitration is part of his services
b. The Owner, he was the one who gave the authorization
c. The Electrician, he was the one who installed the incorrect wiring
d. The Bureau of Fire Protection, it is within their mandate
a. The Architect, Arbitration is part of his services
Situation 14: At a Textile Factory, the Manager has a picture drawn by his son. He wants to hang it on the wall of his office.
1. What would you recommend he should use to emphasize/illuminate his son's drawing on his wall without consuming too much power?
a. LPS Track Light
c. Recessed Incandescent Lamp
b. HPS spot Light
d. Surface Mounted CFL
a. Low Power Sodium (LPS) Track Light

Recessed Incandescent Lamp

High Pressure Sodium (HPS) spot Light

Surface Mounted Compact Flourescent Lamp (CFL)

2. For the Production Area, which lighting is best?
a. Troffer Lighting
c. Pendant Lighting
b. Industrial Lighting
a. Troffer Lighting

Situation 15: You hired a Master Electrician to do the Electrical Works for your newly built house. You asked the electrician to install the materials you recommended. After a year, problems in the electrical works surfaced.
1. Who is responsible for this?
a. Electrician, because he knew from the start that he is installing defective or inappropriate materials.
b. You, because you were the one that recommended the materials used by the electrician
c. None, because it is only normal for these thing to happen.
d.
a. Electrician, because he knew from the start that he is installing defective or inappropriate materials.
Situation 16: Given a schedule of Panel Board Circuits of a 2-Storey Retail Store.. (All Lighting Outlets have 15A wire, while Power Outlets have 20A wire. IMC was used. Hindi kaagad mapapansin yung IMC kasi sobrang liit ng text..)
1. If the Owner wants to add a 5000VA Signage, to what circuit can it connect?
c. Circuit 2 (256VA Lighting Circuit @ Ground Floor)
d- Circuit 3 (500VA Power Outlet @ Second Floor)
e. Circuit 7 (6000VA Signage @ Second Floor)
f. Circuit 13 (Spare 20A Rating)
c. Circuit 2 (256VA Lighting Circuit @ Ground Floor)
Note: Intermediate metal conduit, or IMC, is a rigid steel electrical conduit designed for outdoor exposure and strong connections. It was designed specifically to protect insulated electrical conductors and cables. It does the work of a similar metal conduit, rigid metal conduit (RMC), but weighs about a third less.
2. Where will the switch for the new Signage be located
a. Ground Floor
b. Second Floor
a. Ground Floor
3. What conductor was used?
a. THW
b. THHX
c. IMC
d. uPVC
b. THHX
THW - Inside; Thermoplastic, Heat and Water resistant
THHX - Outside; Thermoplastic high heat (X??)
4. What conduit was used?
a. THW
b. THHX
c. IMC
d. uPVC
c. IMC - Intermediate metal conduit

5. A Type of Electrical Wire suitable for Dry and Damp locations, THHN is commonly used in the Alternating Current Distribution System usually at voltage levels ranging from 110-600 volts. What is meant by THHN?
a. Thermoplastic, HighHeat- resistant, Nylon coated
b. Thermoplastic, Heat resistant, and Moisture resistant
c. Thermoplastic and Moisture resistant
a. Thermoplastic, HighHeat- resistant, Nylon coated

6. What is THWN?
a. Thermoplastic, Heat and Wind-resistant, Nylon coated
b. Thermoplastic, High Heat and Water-resistant, Nylon coated
c. Thermoplastic, Heat and Water-resistant, Nylon coated
d.
b. Thermoplastic, High Heat and Water-resistant, Nylon coated

7. What is XHHW?
a. Xelopenous Heat and Wind-resistant, Nylon coated
b. Cross-Linked High Heat Water Resistant Insulated Wire
c. Xelopenous High Heat and Water-resistant, Nylon coated
d.Cross-Linked Heat and Water Resistant Insulated Wire
b. Cross-Linked High Heat Water Resistant Insulated Wire

Random Questions/Topics you should know:
1. At day, artificial lighting comes from the skylight above, making the beams and columns produce different plays of light. How do you achieve this at night?
a. Put a spotlight atop the skylight
b. Floor-mounted light projecting upwards
c. Place light just below the beam projecting downwards
d. Place a light anywhere. It doesn't matter
c. Place light just below the beam projecting downwards

2. Where would you locate water distribution pipe farthest from?
a. Large trees
b. Carport
c.
d.
a. Large trees
3. Electrical Plan reading, given a Situation then determine:
a. How many power outlets are there in LP-9?
4 pcs
b. Short circuit happened to the elec. Fan in the stair landing, which LP will the electrician check for the condition of the wires?
Power Circuit breaker
c. If LP-9 is shut-off, what can be done in the Master's Bedroom?
c.1. Watch TV
c.2. Turn-on Computer
c.3. Turn-on lampshade
c.4.Take on hot shower
c.1. Watch TV = Non-Lighting (C.O.) Plug
c.2. Turn-on Computer = Non-Lighting (C.O.) Plug
c.3. Turn-on lampshade = Lighting (L.O.) Plug
c.4. Take on hot shower = Non-Lighting (C.O.) Plug
4. Patch panels
Inside PABX

5. Intercom
Private Dialogue

6. Difference between internet and Intranet
Internet - Public
Intranet - Private
7. Most popular network today
a. Facebook
b. Skynet
c. Internet
d. Ethernet
a. Facebook
8. Router
Technical Term

9. Modem
Commercial Term

10. Closed / Open Raceways
Busway / Cablebus

11. Types of Lighting
Ambient Lighting, Accent Lighting, Task Lighting

12.a. Electrical Plan Symbols

12.b. Electrical Plan Symbols

13. From the Hospital Patient's Room shown above, how many switches are there?
a. 4
b. 3
c. 5
d. 2
a. 4

14. From the Hospital Patient's Room shown above, how many duplex receptacle outlet are
there?
a. 2
b. 3
c. 4
d. 5
b. 3

15. From the Hospital Patient's Room shown above, how many ceiling mounted lights are in the T & B?
a. 1
b. 2
c. 3
d. 4
b. 2

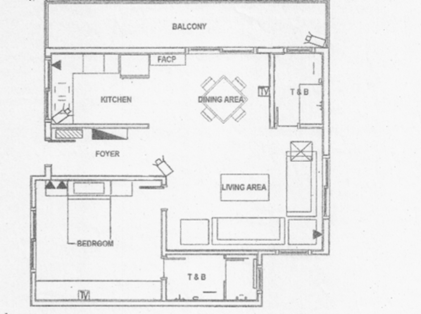
17. What kind of light is used at the Balcony
Pinlight
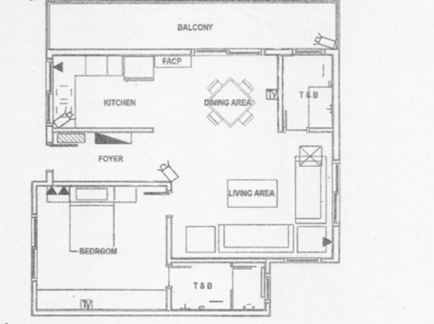
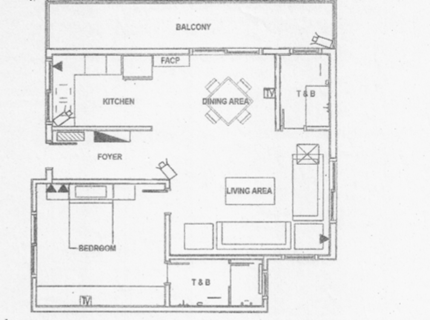
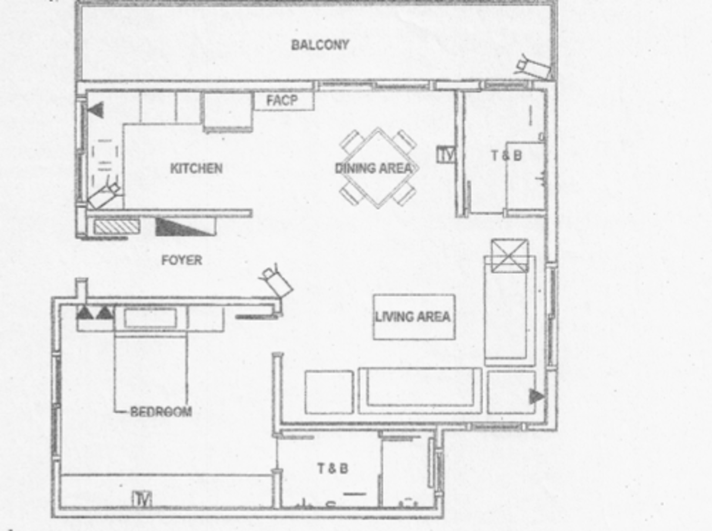
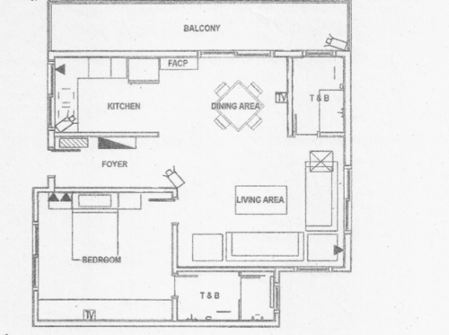
18. From the illustration below, identify A,B,C,D and E
a. Junction Box
b. Single Gang Toggle
c. Two gang Convenience Outlet
d. Utility Box
e. 90 deg. elbow conduit

19. From the figure shown above, how many intercom/telephone?
a. 2
b. 3
c. 4
d. 5
c. 4

20. From the figure shown above, how many security (CCTV) cameras?
a. 2
b. 3
c. 4
d. 5
b. 3

21. From the figure shown above, where is the Power Panel Box?
a. Kitchen
c. Foyer
b. Bedroom
d. Dining Area
c. Foyer

22. From the figure above, where is the Manhole?
a. Kitchen
b. Living Area
c. Bedroom
d. Dining Area
b. Living Area

23. What is FACP?
a. Fire Alarm Control Point
b. Fire Automated Control Panel
c. Fire Alarm Convenience Panel
d. Fire Alarm Control Panel
d. Fire Alarm Control Panel

24. from the figure shown above, how many TV outlet?
a. 1
b. 2
c. 3
d. 4
b. 2

25. Copper pipes are classified as what?
a. Rigid
b. Flexible
c. Rigid or Soft
d. Soft
a. Rigid

26. Which should not be used for water main pipe?
a. Galvanized Iron
b. Ceramic
c. Stainless Steel
d. PVC
b. Ceramic

27. Which pipe is susceptible to UV rays?
a. Cast Iron
b. GI Pipe
c. PVC
d.
c. Polyvinyl chloride (PVC)

28. Water traps are used to prevent foul odor from coming out. Which of the following DOES NOT have a P-trap?
a. Water Closet
b. Lavatory
c. Kitchen Sink
d. Floor Drain
a. Water Closet
31. Plumbing brochure 3-5 items ang lumabas... basic fittings

29. For a T & B at the Ground Floor, which would you connect directly under a Floor Drain?
c. Elbow
d. Nipple
b. P-trap
a. Sleeve
b. P-trap
30. Mostly plumbing (madami from refresher utilities notes) ang lumbas and more on I.T. terms din*

33. Plan reading: Plumbing of simple Residence (basic plumbing 5 questions lumbas pero nasa illustration lahat ng sagot)
32. Differentiate a P-Trap from a House Trap
House Trap - House drain (House trap)

P-Trap - Fixture branch

34. Where is "water meter" located?
a. Right after the main distribution line connection
b. Beside the water pump
c. Within RROW, right before the property line
d.
a. Right after the main distribution line connection

35. What is the Color Coding of Pipes for Potable Water?
a. Blue
b. Green
c. Yellow
d.
b. Green