1/23
Looks like no tags are added yet.
Name | Mastery | Learn | Test | Matching | Spaced |
|---|
No study sessions yet.
Define Functionalism
The principle that the design of a building should be based on its purpose.
Does Function determine Shape? Explain
No because function consists in abstract principles, not in shapes - one function can be satisfied with multiple shapes
Name an object where function determines shape and one where it doesn’t
Aicraft / teacup
What type of building is greatly determined by its function and why?
Towers over 100m have constructive and stability needs
What two types of needs must architecture satisfy?
physical and mental needs
Explain how the structure of a Gothic cathedral satisfies mental needs
seeing the “nerves” generates a sense of safety
Define “quality ornament”
the development and progressive enrichment of a basic theme of composition

Name of building, architect, dates, where, movement
Seagram, Mies van der Rohe, 1950s, New York


Analyse the building + bronze beams
use of raw materials, steels bars don’t reach the floor so they carry no load
Meaning of bronze beams
expresses the buildings’ internal structure - they are a quality ornament
Define the Modern Movement
20th century style that rejected historical ornamentation in favour of function
Main 4 features of the Modern Movement
simplification of shapes
absence of ornament
references to trends in modern art (e.g. cubism)
use of new materials (steel and reinforced concrete)
Define Bauhaus
German school founded in 1919 that sought to unify art, craft, technology into a single functionalist style
Main 4 features of Bauhaus
integration of all types of artistic modalities under the supremacy of architecture
art and industry (werkbund spirit)
Learning + community living

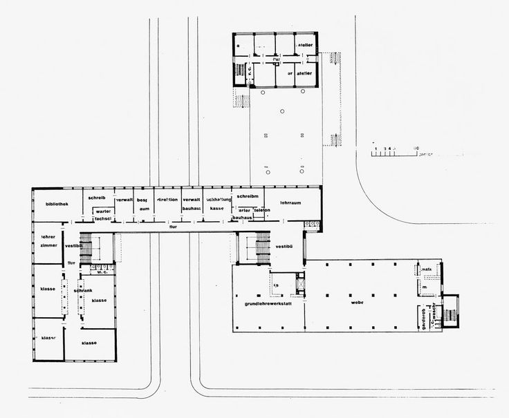
Name of building, architect, dates, where, main movement
Bauhaus building, Walter Gropius, 1920s, Dessau, European rationalism materpiece

How does it interact with the preexisting surroundings?
a corridor is elevated so it doesn’t interrupt the street

Analysis of building façade
anti-monumentality - you cannot tell which is the main façade, allowing you to look at it from different angles - not imposing
What is the main movement of the building
rotary movement (centrifugal)
How is the building divided?
each function is located in independent blocks


Analyse this image of the Bauhaus building
imitates cubisms’ decomposed nature - 2 p.o.v.’s represented simultaneously - dematerialisation of corners permit hovering relations of planes - like overlapping in modern paintings

Define the International Style
minimalist, utilitarian approach that uses modern materials, emerged in the US in the 1920-30s
10 commandments of the International Style
simple white volumes with assymetric composition
straight planes, opaque or transparent
flat roofs
abscence of ornament
structural framework, skeleton
free façade and free plan
ingravity, pilotis
horizontal fluent spcae, movable transparent partitions
ribbon windows
industrial conception, prefabrication
Main architect in France with International Style
Le Corbusier
Famous project in Madrid with international style influence
Cuidad Universitaria